Армстронг: лидер в производстве потолочного покрытия
- Армстронг: лидер в производстве потолочного покрытия
- Связанные вопросы и ответы
- Что такое потолочное покрытие Армстронг
- Какие материалы используются для производства потолочного покрытия Армстронг
- Какие преимущества имеет потолочное покрытие Армстронг по сравнению с другими типами покрытий
- Как часто нужно менять потолочное покрытие Армстронг
- Какие цвета и текстуры доступны для потолочного покрытия Армстронг
- Можно ли установить потолочное покрытие Армстронг самостоятельно
- Какие инструменты и материалы необходимы для установки потолочного покрытия Армстронг
- Как правильно ухаживать за потолочным покрытием Армстронг
Армстронг: лидер в производстве потолочного покрытия
Потолочные плиты могут быть изготовлены из следующих материалов: минерального волокна, стекловолокна, каменной ваты, тонкого стального листа, алюминиевого сплава, дерева, древесного волокна и других.
Наиболее распространенным материалом для изготовления модулей потолка Армстронг является минеральное волокно, которое производится из горной породы базальтовой группы. Кроме минерального волокна в состав модулей входит связующий клеевой состав, красящий пигмент и другие добавки, за счет которых получают различные свойства материала. Панели из керамовидных волокон с окрашенной поверхностью обладают высокой влагостойкостью и устойчивостью к температурным перепадам.
Поверхность модулей может быть ламинирована – покрыта полиэфирной пленкой или фольгой для отталкивания пыли и придания гигиенических свойств. Покрытие текстурированной тканью из стекловолокна, льняной тканью придает декоративные свойства для использования в дизайнерских решениях. Плиты из минерального волокна потолка Армстронг имеют стандартную толщину в пределах 12—25 мм.
Плиты из стекловолокна – тончайших стеклянных нитей – имеют высокую прочность, шумопоглощающие свойства, влагостойкость и стойкость к большим перепадам температуры. Типовой срок службы подобных изделий из стекловолокна около 20 лет.
Панели из каменной ваты обладают отличными шумопоглощающими свойствами, из-за чего их часто называют акустическими, и водостойкостью. Отвечают строгим российским стандартам пожарной безопасности.
Металлические и алюминиевые – влагостойкие, ударопрочные и гигиеничные толщиной 0,5 мм. Выпускаются с различными декоративными покрытиями – глянцевой и матовой окраской разных цветов, напылением из полимерных составов, с нанесенными рисунками, рельефной текстурой поверхности. Для придания акустических свойств потолку Армстронг металлические плиты перфорируют, наносят на обратную сторону минераловолокнистый слой.
Панели из дерева предназначаются для создания богатых интерьеров в исторических стилях, и находят применение довольно редко. Чаще всего применяются модули из древесного волокна МДФ толщиной 25, 35 и 50 мм. Их ламинируют или покрывают шпоном, придают разную текстуру поверхности, перфорируют, снабжают акустической прокладкой с обратной стороны, увеличивающей звукопоглощение.
Связанные вопросы и ответы:
Вопрос 1: Что такое потолочное покрытие Armstrong
Ответ: Потолочное покрытие Armstrong представляет собой один из видов потолочных конструкций, которые используются для декорирования и улучшения внешнего вида помещения. Этот тип покрытия состоит из специальных панелей, которые крепятся к потолку и создают эффект плавной поверхности. Armstrong является одним из ведущих производителей потолочных покрытий и предлагает широкий ассортимент продукции, от традиционных до современных дизайнов.
Вопрос 2: Какие материалы используются для изготовления потолочного покрытия Armstrong
Ответ: Потолочное покрытие Armstrong изготавливается из различных материалов, таких как акрил, металл, стекловолокно, пластик и другие. Каждый материал обладает своими особенностями и характеристиками, что позволяет выбрать наиболее подходящий вариант для конкретного помещения. Например, акриловые панели отличаются высокой гигиеной и легкостью ухода, металлические панели обеспечивают прочность и долговечность, а стекловолоконные панели отличаются низким весом и хорошими звукоизолирующими свойствами.
Вопрос 3: Какие преимущества имеет потолочное покрытие Armstrong
Ответ: Потолочное покрытие Armstrong обладает рядом преимуществ, которые делают его привлекательным для многих потребителей. Среди них можно выделить следующие:
1. Высокая эстетика: Потолочное покрытие Armstrong предлагает широкий выбор дизайнов и цветов, что позволяет подобрать наиболее подходящий вариант для любого интерьера.
2. Удобство установки: Панели потолочного покрытия Armstrong легко монтируются и могут быть установлены даже в существующих помещениях без значительных переделок.
3. Прочность и долговечность: Потолочное покрытие Armstrong изготовлено из качественных материалов, что обеспечивает ему долговечность и высокую прочность.
4. Удобство ухода: Панели потолочного покрытия легко чистятся и не требуют сложных процедур ухода.
Вопрос 4: Какие типы помещений подходят для установки потолочного покрытия Armstrong
Ответ: Потолочное покрытие Armstrong может быть установлено практически в любом помещении, независимо от его назначения. Это могут быть как жилые, так и коммерческие пространства, такие как офисы, магазины, рестораны, отели и другие. Благодаря большому выбору дизайнов и цветов, можно подобрать наиболее подходящий вариант для любого интерьера.
Вопрос 5: Как выбрать подходящее потолочное покрытие Armstrong для своего помещения
Ответ: Выбор подходящего потолочного покрытия Armstrong зависит от многих факторов, таких как размер помещения, его назначение, дизайн интерьера и личные предпочтения. Чтобы сделать правильный выбор, следует обратиться к специалисту или изучить ассортимент продукции Armstrong, чтобы выбрать наиболее подходящий вариант.
Вопрос 6: Как правильно ухаживать за потолочным покрытием Armstrong
Ответ: Уход за потолочным покрытием Armstrong не требует сложных процедур. Для очистки панелей можно использовать мягкую тряпку или салфетку, влажную в мягком моющем средстве. При необходимости, можно применять специальные средства для очистки поверхностей. Важно избегать абразивных средств и крутых инструментов, которые могут повредить поверхность панелей.
Вопрос 7: Какова стоимость установки потолочного покрытия Armstrong
Ответ: Стоимость установки потолочного покрытия Armstrong зависит от многих факторов, таких как размер помещения, выбор материала и дизайна, сложность монтажа и других. Чтобы получить точную стоимость, рекомендуется обратиться к специалисту или компании, которая занимается установкой потолочных покрытий Armstrong.
Вопрос 8: Где можно купить потолочное покрытие Armstrong
Ответ: Потолочное покрытие Armstrong можно приобрести в специализированных магазинах строительных материалов, которые предлагают продукцию известных брендов. Также можно заказать покрытие через официальный сайт Armstrong или другие онлайн-магазины, предлагающие широкий ассортимент строительных материалов. При покупке рекомендуется обращаться к квалифицированному специалисту, чтобы получить советы по выбору и установке потолочного покрытия Armstrong.
Что такое потолочное покрытие Армстронг
В подвесных системах этого бренда используется не только плиточная система. Удлиненные плитки, похожие на реечные потолки появились в модельной линейке бренда. Но в основном это продукция предприятий других стран, работающих по лицензии. Никаких реечных поверхностей здесь нет. Основа конструкции, это система пружинных подвесок и алюминиевого профиля различной ширины. Лицевая сторона формируется из плиток с несколькими вариантами обработки поверхности и кромок.
Кромка Microlook с небольшим уступом на кромке для подвесок на траверсах шириной 1,5 см., Tegular, также с уступом для подвесок 2,4 см и Board с ровной кромкой под все виды потолков Армстронг. Самые распространенные габариты плит 600*600 и 60*1200 мм. Покрытие на плитках наносится с учетом области их применения. Основные виды плиток Армстронг следующие:
- Эконом класс с минеральными плитками белого или светло серого оттенка. Максимум, что может быть в оформлении лицевой поверхности, это точки и черточки. Подходят для офисных, промышленных, торговых помещений и для любых ремонтов с ограниченным бюджетом.
- Прима со специальной обработкой плит для помещений с высокой влажностью.
- Гигиенические с покрытием, не впитывающим пылевые и жировые частицы. В основном рекомендованы для лечебных учреждений, но подходит для любых помещений с повышенными требованиями по санитарным нормам.
- Акустические, название которых говорит о свойствах плит. Подходят для всех помещений, где нужно обеспечить звукопоглощающий эффект.
- Дизайнерские, самые привлекательные по оформлению, но достаточно дорогие по цене. Плитки с узорным орнаментом или геометрическим рисунков, более разнообразного цветового оформления для престижных офисных помещений. Торговых и выставочных центров, ресторанов.
Преимущества всех видов потолков и плиток Армстронг
Преимущества сборных подвесных потолков общие, независимо от изготовителя и некоторых отличительных особенностей у отдельных брендов:
Преимущества сборных подвесных потолков Армстронг
Сборные подвесные потолки Армстронг имеют следующие преимущества:
- Легкость монтажа: Система пружинных подвесок и алюминиевого профиля позволяет легко устанавливать и демонтировать потолки.
- Возможность ремонта: Если повреждена одна плитка, ее можно легко заменить без необходимости ремонтировать весь потолок.
- Шумопоглощение: Плитки потолка Армстронг имеют шумопоглощающие свойства, что делает их идеальными для использования в офисах, школах и других помещениях.
- Огнестойкость: Плитки потолка Армстронг изготовлены из огнестойких материалов, что делает их безопасными для использования в помещениях с повышенной пожарной опасностью.
- Возможность использования в различных помещениях: Сборные подвесные потолки Армстронг можно использовать в офисах, школах, больницах, магазинах и других помещениях.
- Долгий срок службы: Плитки потолка Армстронг имеют долгий срок службы и не требуют частого ремонта или замены.
Эти преимущества делают сборные подвесные потолки Армстронг популярным выбором для многих архитекторов, дизайнеров и строителей.
- Отсутствие ограничений по установке сборных потолков в каком-либо помещении из-за санитарных или противопожарных норма;
- Быстрый монтаж без предварительной подготовки поверхности перекрытий, без риска повредить отделку стен и пола при установке потолочных конструкций;
- Беспрепятственный доступ к закрытому потолочному пространству без демонтажа всей конструкции;
- Возможность скрыть дефекты перекрытия без выравнивания и оштукатуривания, спрятать неприглядные вентиляционные короба или другие коммуникации, расположенные на перекрытиях или стенах по периметру помещения;
- Минимум ухода за панелями, который всегда затруднен в высоких помещениях;
- Возможность заменить только несколько плиток, поврежденных протечками воды или каким-либо механическим способом;
- Совместимость с различными схемами установки осветительных приборов, в том числе и специально сконструированных для установки в этих видах потолков Армстронг;
- Эстетичность и уникальный визуальный эффект при правильном подборе расцветки и видов плитки Армстронг к общему стилю оформления интерьера;
- Ценовая доступность самой конструкции потолочной системы и ее монтажа;
- И главное, долгий срок эксплуатации без постоянных ремонтов, покраски, оклейки потолка.
Какие материалы используются для производства потолочного покрытия Армстронг
Первые подвесные потолки типа Армстронг были изготовлены на основе каркасов из оцинкованной стали и войлочных панелей. Это обеспечивало более-менее сносное глушение шума и звука в местах массового скопления людей, производственных цехах и торговых залах.
В современных потолочных конструкциях Армстронг используются самые эффективные звукопоглощающие материалы. Для торговых залов супермаркетов и помещений сборочных цехов используют плиты из гранулированного минерального волокна.
Чтобы улучшить поглощение звуков и одновременно избавиться от сквозняков, создаваемых системами вентиляции, используют перфорированный потолок Армстронг. Это позволяет сделать поверхность гладкой, красивой, легкой в уборке пыли и одновременно эффективно поглощающей звук.
Размер панелей практически не изменился, это классический габарит 60х60 см. Для очень больших помещений используются также плиты удвоенного размера 60х120 см.
Для помещений с мощной системой вентиляции, где нет особой необходимости бороться с шумом, но существует потребность регулярно очищать воздух от пыли, статического электричества и водяного пара, применяется металлический потолок Армстронг с перфорированной поверхностью. Это могут быть длинные коридоры фойе, общественные заведения, крытые рынки, бассейны, складские помещения и даже стадионы. Благодаря наличию отверстий на поверхности подвесной облицовки панели не хлопают под мощными потоками воздуха, нет конденсата и пятен пыли на потолках.
Металлические потолки можно оборудовать плитами с нанесенной текстурой дерева, камня, мозаики, фотографий или составной графики. Металл отличается высокой устойчивостью к любым нагрузкам, нет канцерогенных или токсичных соединений, и тем более, нет угрозы воспламенения и горения. Поэтому металлический потолок Армстронг может использоваться в любом помещении, где нет сильных шумов и звуков.
Какие преимущества имеет потолочное покрытие Армстронг по сравнению с другими типами покрытий
Плюсов у подвесных потолочных систем Армстронг немало. Ниже будут рассмотрены основные преимущества установки данного вида подвесных потолков.

Очевидные плюсы растровой подвесной потолочной системы – бюджетность , эстетическая привлекательность, простота монтажа, длительный эксплуатационный срок службы, а также возможность компактно размещать, проходящие по потолку электропровода и трубы, создавать нестандартные системы освещения (как общие, так и точечные), и индивидуальную вентиляцию. Ремонтировать потолки Армстронг также достаточно легко, благодаря ячеистой структуре: дефектные плиты или направляющие без труда меняются на новые. Наиболее сложные конструкции подвесных потолочных систем Armstrong – диагонального типа. Их монтаж стоит доверять профессионалам из-за некоторых особенностей работ по установке. В то же время, умелый мастер справится с такой задачей достаточно быстро, причем для работ по монтажу не потребуется специально подготавливать помещение, так как технология установки потолков Armstrong является одной из самых чистых с минимумом образования строительной пыли и мусора.
Прочность потолочных систем Armstrong не вызывает сомнений. Безусловно, конструкция подвесного потолка не защитит самостоятельно от залива сверху. Однако если организовать качественную гидроизоляцию на потолочном перекрытии перед монтажом подвесного потолка, то эта проблема будет полностью решена.
Область применения потолочных систем Армстронг достаточно широка. Их можно монтировать в помещениях с разной высотой потолков, которая в большинстве случаев варьируется в пределах 2,5 – 3,2 метра. Благодаря наличию в комплектации к потолкам Armstrong подвесов разной длины, современные функциональные потолочные системы удается эффективно организовывать и домах-«сталинках» с высокими потолками и в обычных панельных многоэтажках постройки второй половины прошлого века. Что касается банковских и общественных учреждений, торгово-офисных и развлекательных центров, то в таких помещениях установка потолков Armstrong является на сегодня наиболее популярным способом организации потолочного пространства. Также следует учесть, что образующееся межпотолочное пространство идеально подходит для фиксации электропроводов и труб, проходящих поверху.
Акустические свойства потолочных систем Армстронг – еще один аргумент в пользу их выбора. Материалы, из которых изготавливаются плиты (минеральная вата, органический прессованный картон, стекло и металл) обладают повышенными звукоизоляционными характеристиками. Учитывая, что шум также гасится воздушной прослойкой межпотолочного пространства, удается достичь достаточно высоких показателей шумопоглощения.
Широкая номенклатура модификаций потолков Армстронг позволяет без особых трудностей подобрать оптимальный вариант, как с позиции функциональности и экономичности, так и с позиции эстетической привлекательности. В зависимости от типа и характеристик помещения, выбор может пасть либо на облегченную потолочную конструкцию с мягкими, практически невесомыми плитами, либо на жесткую систему, с металлическими или стеклянными ячейками, придающими особый шарм поверхности потолка. В комплект потолочной системы, в зависимости от ее вида входят направляющие из разных материалов (алюминиевые или ПВХ-профили), рассчитанные на разный вес подвесной конструкции. Также, в соответствии с техническими параметрами потолка Армстронг, подбираются и элементы крепления. Это могут быть дюбеля с пластиковыми патронами или металлические усиленные кронштейны для жестких конструкций. Таким образом, производители потолочных систем Armstrong очень точно соотносят используемые комплектующие с весом подвесной конструкции.
Преимущества потолочного покрытия Армстронг
Потолочное покрытие Армстронг - это отличный выбор для любого помещения, и это не только потому, что оно бюджетно, но и из-за многих других преимуществ.
- Бюджетность: Потолочное покрытие Армстронг - это экономное решение, которое не ударит по вашему бюджету.
- Эстетическая привлекательность: Армстронг - это не только функциональное, но и эстетически привлекательное решение, которое может добавить уникальный стиль вашему помещению.
- Простота монтажа: Монтаж потолка Армстронг - это относительно простой процесс, который не требует специальных навыков.
- Длительный эксплуатационный срок службы: Армстронг - это долговечное решение, которое может прослужить вам долгие годы.
- Компактное размещение электропроводов и труб: Армстронг позволяет компактно размещать электропроводки и трубы, проходящие по потолку, что создает дополнительное пространство.
- Создание нестандартных систем освещения и вентиляции: Армстронг позволяет создавать нестандартные системы освещения и вентиляции, что может быть особенно полезно в коммерческих и общественных учреждениях.
- Легкая ремонтопригодность: Армстронг - это ремонтопригодное решение, которое может быть легко отремонтировано, если возникнут какие-либо проблемы.
- Простота ремонтных работ: Ремонтные работы по Армстронгу - это относительно простой процесс, который не требует специальных навыков.
- Диагональные конструкции: Армстронг предлагает диагональные конструкции, которые могут быть установлены только профессионалами из-за некоторых особенностей монтажа.
- Минимальное образование строительной пыли и мусора: Армстронг - это технология, которая создает минимальное количество строительной пыли и мусора, что делает ее идеальной для помещений с чувствительной мебелью или оборудованием.
- Противопожарная безопасность: Армстронг - это безопасное решение, которое не создает риска пожара.
- Область применения: Армстронг может быть установлен в помещениях с разной высотой потолков, от 2,5 до 3,2 метра.
В целом, Армстронг - это отличный выбор для любого помещения, и это не только потому, что оно бюджетно, но и из-за многих других преимуществ, которые оно предлагает.
Как часто нужно менять потолочное покрытие Армстронг
Точное название такого типа покрытия – плиточно-ячеистый подвесной потолок. В нашей стране он традиционно называется Armstrong по имени американской компании-производителя. Именно эта фирма более 150 лет назад начала производить среди множества прочих строительных материалов плиты из натурального волокна. Подобные плиты сегодня используются для монтажа потолка типа Armstrong. Хоть устройство и технологии установки подобных подвесных систем несколько изменились, но название осталось как нарицательное имя.
Плиточно-ячеистые потолочные покрытия Armstrong представляют собой каркасные системы из металлических профилей , подвесов, которые крепятся к бетонному основанию и минеральных плит, которые являются непосредственно покрытием. Материал для них получают из минеральной ваты с добавлением полимеров, крахмала, латекса и целлюлозы. Цвет плит преимущественно белый, но декоративные покрытия могут иметь другие расцветки. Детали каркаса сделаны из легких металлов: алюминия и нержавеющей стали.
Масса одной минеральной плиты может быть от 1 до 3 кг, нагрузка на 1 кв. м. получается от 2.7 до 8 кг. Изделия имеют преимущественно белый цвет, они довольно хрупкие, подвержены действию влаги и высоких температур, поэтому их хранят в надежной влагозащитной упаковке. Режутся такие плиты обычным малярным ножом. Есть и более прочные варианты, изготовленные на основе латекса и пластика, эти требуют для обработки более твердого инструмента.
Достоинства потолочных покрытий типа Armstrong следующие:
- легкость всей конструкции и простота установки;
- возможность скрыть все неровности и дефекты потолочного перекрытия;
- безопасность и экологическая чистота материала;
- возможность легкой замены плит с дефектами;
- хорошая защита от шума.
Подвесные потолки после установки образуют пустоты, в которые обычно прячут электрические кабели и другие коммуникации. Если требуется ремонт или установка новой проводки, то к ней легко подобраться, сняв несколько плит, потом их просто ставят на место.
Есть у потолков данного типа свои недостатки:
- так как они устанавливаются на некотором расстоянии от потолочного перекрытия, то забирают высоту у помещения, в слишком низких комнатах ставить систему Armstrong не рекомендуется;
- минеральные плиты довольно хрупкие, они боятся воды, так что в помещениях с повышенной влажностью их лучше не монтировать;
- потолки Armstrong чувствительны к перепадам температур.
Обычно исходя из этих минусов, выбирают определенные места, где устанавливают потолки Armstrong. Лидером здесь являются офисы, учреждения, коридоры в различных зданиях. Но часто хозяева квартир при ремонте делают у себя подобные покрытия, чаще всего в прихожих. В помещениях, где может быть повышенная влажность, например, на кухнях, проблема тоже легко решается – ставятся специальные виды покрытий Armstrong: гигиенические с защитой от пара, налипания жира и функциональные, влагостойкие.
Какие цвета и текстуры доступны для потолочного покрытия Армстронг
Компания Армстронг была первой организацией, которая представила свой продукт на отечественном рынке. Данное название прижилось для всех видов потолочных конструкций из минераловолокна в его классическом варианте. Подвесной потолок представлен на современном рынке в большом количестве и превзошел по популярности подшивной.
Важно понимать, что минеральный состав состоит из самостоятельного потолочного материала. Он может быть изготовлен по типу подвесных конструкций Армстронг, а может иметь иные особенности и характеристики.
Подвесные потолки различаются по видам. Стоимость плит зависит от их качества и функциональной нагрузки. Чтобы разобраться в необходимости установки конструкции, следует ознакомиться с ее качествами.

Особенности потолка типа Армстронг:
- Модульные потолки удобно использовать для скрытия от взгляда инженерных коммуникаций.
- Конструкция позволяет подготовить и изменить потолок так, чтобы он подходил под определенный стиль в интерьере. Очень красиво смотрятся зеркальные панели. Плиты могут иметь прозрачный вид или матовое стекло. Иногда декоративный вид очень важен, особенно для оформления в жилых помещениях.
- Конструкция подвесных потолков позволяет установить подходящее освещение.
- Имеют высокие звукоизоляционные свойства.
За плитами данного вида осуществляется очень простой уход. Есть специальные моющиеся плиты, которые отлично подходят для ванной. Для ванн специалисты советуют выбирать гигиенические или влагостойкие плитки. Однако такие конструкции имеют некоторые недостатки.
Недостатки потолка типа Армстронг:
- Потолочные конструкции типа Армстронг должны соответствовать типу помещения. Они влагоустойчивые, но не влагостойкие. В случае затопления помещения потолок придет в негодность.
- Плиты могут терять свои качества при резких и частых сменах температурного режима и в условиях влажных помещений.
- Конструкции довольно хрупкие и легко подвергаются механическим повреждениям.
Прежде чем совершить покупку и установку конструкции данного вида, следует взвесить все за и против. Если существуют риски повреждения потолка, лучше установить более надежный вид потолочных плит. Потолок Армстронг требует аккуратного обращения.
Можно ли установить потолочное покрытие Армстронг самостоятельно

- Быстрота монтажа . Система Армстронг собирается за очень короткий промежуток времени. За день бригада сборщиков может смонтировать до 200 м2потолка, причем дальнейшее декорирование поверхности не требуется. Изделия часто используются для обустройства больших площадей.
- Монтаж без подготовки плит перекрытия . Систему можно крепить к любой надежной поверхности. Выравнивать строительные панели не требуется, вся регулировка производится корректировкой длины подвеса.
- Небольшой вес . Самый тяжелый элемент каркаса весит 0,5 кг, поэтому изделие легко монтировать, а потолок не требует усиления.
- Простота сборки . Каркас собирается из различных профилей, которые подогнаны друг к другу на стадии изготовления. Корректировать приходится только габаритные размеры изделия.
- Звуко- и теплоизолирующие качества . Общие изоляционные свойства перекрытия увеличивается на 20% благодаря свойствам наполнителя панелей.
- Экономия средств . Стоимость 1 м2потолка Армстронг — всего 7 долларов без учета монтажных работ, меньше стоят только обои.
- Маскировка коммуникаций . После сборки изделия между панелями и потолком остается зазор для размещения трубопроводов, кабелей и т.д.
- Удобства при ремонте . Панели легко демонтируются для доступа к инженерным коммуникациям, расположенным над системой. Это позволяет быстро ремонтировать спрятанное оборудование, протягивать коммуникации, канализационные трубы. При повреждении плит их легко заменить.
- Пожаробезопасность . Каркас подвесного потолка Армстронг и панели изготовлены из негорючего материала.
- Унификация панелей . Размеры ячеек потолка Армстронг стандартизированы (600x600 мм), в них можно устанавливать любое оборудование для подвесных потолочных систем с соответствующими размерами, например, светильники, вентиляторы, обогреватели.
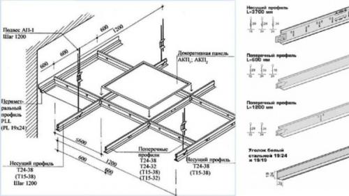
Какие инструменты и материалы необходимы для установки потолочного покрытия Армстронг
Потолочная система Армстронг состоит из набора элементов, которые легко между собой соединяются. Одно из ее достоинств — модульность, которая позволяет получить потолок любого размера и конфигурации. Проблема только с нелинейными формами — они не предусмотрены и штатных решений нет. Потому этот вид подвесного потолка используется только в квадратных и прямоугольных помещениях.

Это вариант потолка Армстронг со смешанным заполнением
Профили
Профили для потолка армстронг деалют из легкого алюминиевого сплава. На верхней части профилей нанесена перфорация, при помощи которой они крепятся к подвесам и стыкуются между собой. Нижняя часть профилей — та, которая видна из помещения — может иметь серебристый цвет, но чаще — белый. Также есть черные и золотистые, можно найти другие цвета, но их уже надо искать.

Чаще всего профиля окрашены в белый цвет
Длина профилей 600 мм, 1200 мм, 3600 мм. Несущие профили должны быть цельными (в случае необхоидимости могут сращиваться), потому длину подбираем такую, чтобы профиль был не короче помещения. Его нарезают на участки нужной длины.
Поперечные профили набираете частично длиной 120 см, частично — 60 см. Придется считать, сколько нужно каких для создания подвесной системы в вашем случае. Резать их не получится — по краям сделаны выступы, при помощи которых они стыкуются с несущими.

Монтажная схема потолка армстронг и ее компоненты
Несущие и поперечные профили бывают двух размеров — под разные типы плит: с полочкой на 15 мм и 24 мм. Разной бывает и «спинка» — под разную толщину плит (19 мм, 24 мм и 29 мм).
Есть еще пристенные профили. Они выполнены в виде уголка, монтируются по периметру помещения. На них опираются крайние плиты. Они тоже есть с полочками разной величины — 19 мм и 24 мм.
Плиты
Плиты для подвесных потолков Армстронг бывают двух размеров — 120 см * 60 см и 60 см * 60 см. Второй вариант более распространен, возможно потому, что квадраты лучше воспринимаются, чем прямоугольники. Есть еще они разной толщины — от 6 мм до 19 мм. Чем больше толщина, тем большую степень звукоизоляции имеет такой потолок, но во многом эта характеристика зависит от материала, из которого изготовлены плиты. А бывают они нескольких видов:
- Класс Эконом. Наиболее дешевые из всех, они имеют высокую гигроскопичность и плохо переносят повышенную влажность. Влагу они впитывают в лбом виде — в виде жидкости при подтоплении соседями сверху или из воздуха. Напитавшись влагой, становятся тяжелыми, начинают менять форму — прогибаться, что портит внешний вид. В общем, вариант дешевый, но хорошо себя чувствует в помещениях с климатконтролем и постоянной влажностью. В эту группу входят Oasis (Оазис) и ,Oasis+, Cortega (Гортега), Tatra (Татра), Bajkal (Байкал).

Плиты для потолка Армстронг касса Эконом
- Класс Прима (Prima). Это более дорогие панели, но они и по характеристикам намного лучше. Во-первых, они более прочные, имеют повышенную стойкость к влаге (85% против 65% у класса Эконом). Лучше они и в плане звукоизоляции и внешнего вида. К этой группе относятся коллекции Adria (Адриа), Casa (Каса), Cirrus (Циррус), Plain (Плэйн), Duna+ (Дюна плюс).

Плиты класса Прима
- Влагостойкие. Этот вид плит для подвесного потолка можно использовать во влажных помещениях или при повышенной влажности воздуха. Есть два вида Mylar (Мулар), Newtone Residence (Ньютон Резиденс).

Влагостойкие плиты для потолка Армстронг
- Акустические. Имеют улучшенные характеристики по звукопоглощению. Подходят для монтажа в торговых залах, офисах. Выпускаются в двух видах: Neeva (Ниива), Frequence (Фриквенс).
- Гигиенические. Эти плиты хорошо моются, предназначены для медучреждений и предприятий пищевой индустрии. Вид всего один — Bioguard (Биогуард).

Акустический и гигиенические — для специфического применения
- Дизайнерские. Эти плиты для потолков армстронг значительно отличаются по внешнему виду от всех остальных. Они используются при оформлении клубов, ресторанов, баров. Имеют презентабельный, а порой и роскошный вид, но стоят уже немало. Модификаций несколько: Visual (Вижуал), Cellio (Селлио), Graphis Linear (Графис Лайнер), Cirrus Image (Циррус Имидж).

Как правильно ухаживать за потолочным покрытием Армстронг

- Удобная установка . Подвесной потолок монтируется на легкий, металлический каркас. Его установка не занимает много времени, отсутствует грязь, неприятный запах, не требуются дорогостоящие инструменты.
- Эксплуатация . Отличительная особенность подвесных потолков – возможность использования межпотолочного пространства. Это может быть актуально в старых зданиях, где коммуникации проложены по потолку. Армстронг закроет неприглядные трубы и в то же время даст возможность с легкостью их обслуживать.
- Возможность точечной замены поврежденных плит . Сломанный участок потолка можно мгновенно заменить на новый. В отличие от покраски и побелки, для ремонта подвесного потолка не потребуется вообще никаких инструментов.
- Эстетика . Производители выпускают сотни различных по дизайну и цвету потолочных плит. При желании можно менять надоевший рисунок самостоятельно, ведь размер плит стандартный.
- Экологическая безопасность . В состав плиты не входят вредные и опасные химические соединения, плиты не подвержены открытому горению.
- Срок эксплуатации . На потолочную плиту распространяется гарантия 10 лет. Никакие альтернативные способы не прослужат настолько долго.
- Стоимость . С учетом подготовительного этапа работ, материалов и стоимости инструментов, задействованных в монтаже, цена на подвесной потолок Армстронг значительно ниже, чем любой другой вид потолочной отделки. Не забываем про гарантию 10 лет и возможность самостоятельной замены поврежденных участков.




