Строительство веранды к дому своими руками пошаговая инструкция. Этап первый – закладка фундамента
- Строительство веранды к дому своими руками пошаговая инструкция. Этап первый – закладка фундамента
- Проекты террас пристроенных к дому. Веранда и терраса: фото готовых проектов
- Из чего лучше построить пристройку к дому. С чего начать
- Как построить веранду к дому своими руками пошаговая инструкция. Веранда пристроенная к дому: этапы строительства
- Строительство террасы к дому своими руками. Терраса у дома: планирование, ход работ
- Видео построить веранду своими руками
Строительство веранды к дому своими руками пошаговая инструкция. Этап первый – закладка фундамента
После определения последовательности строительства — веранда своими руками из дерева возводится пошагово. Начать необходимо с основания террасы, которое представляет собой ленточный мелкозаглубленный или столбчатый фундамент.
Как правило, оба вида имеют достаточно широкое распространение при выполнении самостоятельного изготовления домовых пристроек. Рассмотрим особенности данных типов фундамента для будущей террасы.
Столбик за столбиком
Простым и менее затратным с точки зрения материалов и физических усилий является столбчатый фундамент веранды. Он представляет собой несколько отдельных опор прямоугольного сечения в горизонтальной плоскости. Для изготовления используют следующие материалы:
- кирпич керамический красный;
- блоки фундаментные бетонные;
- блоки строительные бетонные;
- кладочный песчано-цементный раствор.
Перед установкой под будущие столбики выкапывают ямы 0,6-1м. Глубина заглубления под опоры террасы зависит от качества почвы и массы будущего строения. Дно ям отсыпают песком и щебнем с промежуточным утрамбовыванием. Поверх отсыпки под основание террасы заливают бетонную подушку для выравнивания.
Деревянная веранда должна равномерно опираться на все элементы фундамента. Для этого столбы выводят на общий уровень по высоте. С этой целью можно использовать частично обрезанные блоки или кирпич, а также различную толщину швов. После установки всех опор для террасы их необходимо защитить от влаги. В этом случае используют готовую битумную мастику и рулонный гидроизолятор. Аналогично осуществляется и гидроизоляция оголовков столбиков под веранду.
Лента под террасу – плюсы и минусы
Ленточный вид фундаментов для террасы требует больших усилий при строительстве. Основные этапы:
- разметка ленты по периметру стен террасы;
- копка траншеи на глубину не менее 0,6 метра шириной около 30 см;
- установка опалубки для подъема ленты над уровнем почвы до брусовой обвязки веранды;
- выполнение отсыпки дна траншеи песком и щебнем;
- изготовление и установка армирующего каркаса из стальных прутьев;
- приготовление бетонного раствора в достаточном объеме, заливка ленты до верхнего края опалубки;
- гидроизоляция застывшей ленты с помощью готовых составов;
- засыпка траншеи грунтом.
Как видно из описания процесса, технология установки ленточного фундамента под террасу из дерева – процесс достаточно трудоемкий и длительный, требует более высокой квалификации, чем при монтаже столбчатого основания. В случае неправильного возведения или высокой подвижности грунта ленту может порвать и выгнуть, что обязательно отразится на всей конструкции.
Проекты террас пристроенных к дому. Веранда и терраса: фото готовых проектов
Итак, прежде чем начать обсуждение необходимо сначала разобраться, что такое терраса и, что такое веранда, чем они отличаются друг от друга и имеют ли что-нибудь общее.
Терраса — это открытая площадка в виде настила из досок либо другого материала, примыкающая к стене дома. Она может находиться, как с одной, так и со всех сторон дома, описывая его контур целиком. Обычно на ней, устанавливаются небольшой высоты балясины (перила), которые являются защитным и декоративным элементом для ограждения террасы.

Открытая деревянная терраса с импровизированным местом отдыха внутри

Нет ничего лучше, чем наслаждаться природой на открытом воздухе
Веранда — это образно говоря «закрытая терраса» с такими же конструктивными особенностями, только в отличие от последней у неё есть двери , окна и крыша . Она не имеет общего отопления с домом, исключением может быть автономное. Чаще всего веранда используется в качестве летней кухни, столовой либо комнаты отдыха.

Дом с уютной верандой на берегу реки — то о чем можно мечтать

По возможности старайтесь максимально использовать естественное освещение в веранде
Несмотря на то, что каждая постройка имеет свое конструктивные признаки, с точностью сказать, что именно является верандой и, что является террасой сложно. На сей счет и у специалистов расходятся мнения.
К примеру чем можно назвать пристроенную к дому конструкцию, имеющую пол, крышу и перегородки, но не имеющую окон и дверей, однозначного ответа не даст никто. Да по сути это и не важно. Главное, чтобы конструкция была функциональной, привлекательной и достаточно надежной.

Подвесные качели и мягкие кресла создадут идеальные условия для отдыха

Террасу с двумя уровнями можно разбить на две различные зоны
Внимательно рассматривая фото проектов, которые вам предлагают дизайнеры, важно убедиться, что пристройка будет полностью вписываться в общую стилистику с домом и участком.
Идеальным вариантом считается, когда пристройка изготовлена из тех же материалов, что и сам дом, так они лучше гармонируют друг с другом. Однако это условие не является обязательным и при правильном подходе добиться прекрасного сочетания можно, использовав любые материалы. Примером тому служат проекты домов с террасой фото которых представленные на нашей странице.

Главным атрибутом открытой террасы являются удобные кресла из искусственного ротанга

На открытой террасе можно обустроить обеденную зону с небольшой кухней
Правильное освещение
Для комфортного вечернего и ночного времяпрепровождения на террасе, нужно хорошо осветить её пространство. Гонясь за красотой, важно не забыть и о безопасности, ведь в отличие от дома, терраса находится под открытым небом и подвергается воздействию осадков. Спланируйте размещение осветительных приборов таким образом, чтобы они освещали не только основную зону, но и прилегающие к ней места (ступеньки, дорожки).
Не делайте освещение слишком ярким и бьющим в глаза. Только приглушенный свет, который приятен глазу, создаст по-настоящему невероятную и теплую атмосферу наполненную романтикой.

Великолепно спланированное освещение террасы
Одним из самых популярных оттенков для современных террас считается цвет венге
Пристроить террасу можно, как к первому, так и ко второму этажу дома. Второй вариант потребует более сложных расчетов, так как на первый план выходит не эстетический внешний вид, а безопасность. Все основные конструктивные узлы террасы должны быть надежно и прочно закреплены, чтобы обеспечить безопасное нахождение на ней максимально допустимого количества людей.
Наличие перил у надстроенной террасы обязательное условие. Причем это должны быть не декоративные балясины установленные в большей степени для красоты, а полноценное ограждение, позволяющее сделать конструкцию абсолютно безопасной.

Оригинальный дизайн открытой летней террасы с потрясающим освещение

Уютная и стильная терраса организованная под навесом крыши
C освещением веранды все гораздо проще. Здесь нет открытых участков незащищенных от осадков, поэтому можно использовать обычное потолочное освещение. Лучше всего для веранды использовать стандартную форму плафонов (цилиндр, сфера). Уход за ними минимальный, к тому же они подойдут к любому стилю.


Из чего лучше построить пристройку к дому. С чего начать
Многие собственники частных домов задают один и тот же вопрос: «Хочу сделать пристройку к дому, с чего начать?»
Начать нужно с того, что прикинуть какого размера будет постройка. А также нужно решить из какого материала мы будем строить.
Если основной дом деревянный, пристрой также лучше построить из дерева. Если основное строение каменное, логичней будет выбрать для пристроя кирпич или бетонные блоки.
Но не будет ничего страшного, если Вы сделаете пристрой к каменному зданию из дерева, а к деревянному – из кирпича. Это будет выглядеть нормально и правильно. Примеров таких построек много.
Размеры будущего пристроя зафиксируйте на бумаге: сделайте чертеж. Это не так сложно, как кажется. Необходимо нарисовать план, то есть вид на конструкцию сверху и несколько разрезов – как будут выглядеть конструкции, если их разрезать по вертикали. Полезно будет сделать чертежи отдельных узлов соединения деталей конструкций. Проставьте размеры.
Элементарный чертеж необходим для любой постройки. Выполнив его на бумаге, Вы уже будете видеть то, что получите в результате строительства.
Часто мастера своего дела говорят, что они все представляют в голове и им не нужны чертежи. Возможно это и так, но есть риск, что что-то Вы все-таки упустите, и тогда необходимо будет переделывать часть работы.
Возможные варианты расположения пристроя относительно основного строения.
Место строительства пристроя выбираем с той стороны, где нет окон. Обычно дверь в дом получается внутри пристроя. То есть, выходя из дома, мы попадаем в пристрой, а из пристроя уже на участок. Пристрой в этом случае служит верандой или сенями. Такой вариант проще всего, и он наиболее экономичный, но возможны и другие схемы.
Источник: https://ogorod-bez-hlopot.zelynyjsad.info/stati/steny-doma-iz-chego-stroit-kirpich
Как построить веранду к дому своими руками пошаговая инструкция. Веранда пристроенная к дому: этапы строительства
Прежде всего необходимо определиться с типом — открытая/закрытая, из какого материала, выбрать тип фундамента. Также необходимо решить, какие размеры она будет иметь, где и как располагаться. Все это желательно прорисовать на плане. Еще лучше — заказать проект. Строительство по проекту у нас, скорее, исключение, но хотя-бы план с размерами и указанием места расположения, привязкой к дорожкам и т.д. у вас быть должен.
Постройка веранды к дому своими руками идет по следующему плану (строим из древесины):
- При помощи колышков и шпагата размечаете контуры.
- Снимаете дерн и плодородный слой. Если этого не сделать, под настилом растительность будет гнить, распространяя ароматы.
- Размечаете фундамент. На этом этапе могут возникнуть вопросы: какой высоты он должен быть. Если фундамент делаете несвязным и «плавающим», уровень настила веранды должен быть на 5-10 см ниже уровня пола. Это необходимо для того, чтобы даже приподнявшись, пристройка не заблокировала входную дверь. Если не хотите чтобы пол был ниже, придется во входной двери делать высокий порог: чтобы гарантировать свободу открывания двери. От того, на какой высоте будет находится пол пристройки, зависит высота опорного бруса. Он прибивается к стене дома, к нему крепят балки перекрытия. По его нижнему краю отбивают высоту фундамента (это два следующих шага).
- Прибиваете к стене опорный брус, по нижнему краю которого отбивается высота фундамента.

Как разметить пристройку: прибиваете на требуемом уровне опорный брус, по его нижнему краю отбиваете высоту фундамента
- Строите фундамент.
- Пока бетон набирает хотя бы половину прочности, завершаете подготовку площадки. Если на дне котлована (плодородный слой сняли) почва хорошо пропускает воду (песчаная, супесчаная), на дно засыпаете щебень. Его можно уплотнить, а можно обойтись и без этого. Если под плодородным слоем суглинок или глина, засыпать котлован придется или таким же грунтом (но не плодородным) или чистой глиной. Ее необходимо хорошо утрамбовывать, чтобы не создавались пустоты, в которых будет скапливаться вода (лучше укладывать размоченную до состояния пасты слоями).
- На готовый фундамент укладывается слой гидроизоляции.
- Выставляются и закрепляются опорные стойки под кровлю.
- Делают обвязку стоек: прибивают по периметру брус толщиной 100*150 мм. Его можно прибить снаружи стоек или между ними. Иногда стойки прибивают после того, как настелили пол. Это — не самый лучший вариант: пол быстрее всего придет в негодность. При таком строении чтобы его заменить, придется разбирать все, вплоть до крыши. Если сначала выставить стойки, а после — пол, его можно будет ремонтировать без проблем.

Так выглядит собранный каркас веранды, пристроенной к дому. Промежуточные стой ки нужны, только если ширина веранды будет более 3 метров.
- К фундаменту и опорному брусу крепят балки перекрытия (брус 100*150 мм). Шаг их установки соответствует шагу установки свай или столбиков.
- Собирают стропильную систему.
- Устанавливаются боковые ограждения (для открытых) или стены (для застекленных). На этом этапе общая технология заканчивается. Далее для крытых она более длинная, открытая веранда к дому пристраивается проще:
- Для открытых на балки прибивают доски пола.
- Для застекленных делают утепленный пол. К балкам прибивают черновой пол. Сверху — лаги, между ними — утеплитель, поверх — чистовой пол.
- Укладка кровли.
- Отделка стен внутри и снаружи.
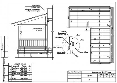
Строительство террасы к дому своими руками. Терраса у дома: планирование, ход работ
Терраса у дома может стать любимым местом отдыха всей семьи, встреч с друзьями или уединения с природой. Можно предусмотреть открытую площадку еще на стадии строительства жилья или пристроить ее позже. Раздумываете, как пристроить террасу к дому, но не знаете с чего начать? Мы подскажем, как спланировать пристройку, возвести фундамент и организовать полноценную зону отдыха.
Конструктивные особенности террасы
Место отдыха на приусадебном участке можно сделать в виде закрытой веранды, отдельно стоящей беседки или открытой террасы. Каждая постройка имеет определенные особенности. Терраса, пристроенная к дому, это открытая площадка без стен . Даже наличие крыши и ограждений не обязательно.

Конструктивные особенности террас:
- фундамент – общий с домом или отдельный, но соединенный с основной постройкой;
- возможно расположение около одной стены или по периметру всего дома ;
- площадка достаточно просторная, ее можно разделить на несколько зон.
Сооружение террасы у дома дает следующие преимущества:
- добавление полезного пространства – зону используют в качестве столовой, летней гостиной, игровой площадки , места для принятия солнечных ванн;
- использование декоративных элементов – оформление террасы позволяет значительно преобразить внешний вид дома.
Планирование открытой террасы
Прежде чем приступить к проектированию открытой террасы к дому, необходимо определиться с местом ее размещения и типом конструкции.

Выбор места под будущую постройку
Планируя обустройство террасы, следует учесть такие параметры:
- освещенность сторон дома;
- особенности рельефа участка и тип грунта;
- открывающийся с площадки вид;
- ландшафт территории – пристройка должна сочетаться с дизайном двора, стилем оформления дома.
Интересное решение для домов, расположенных на склоне – многоуровневая терраса. Такая пристройка одновременно выполняет роль ступеней .
Варианты размещения:
- Терраса к дому. Это самое популярное решение, так как его можно реализовать практически у каждого строения. Конструкция требует надежного основания . Возможно изготовление из разных материалов: кирпича, дерева, металла.
- Отдельно стоящая пристройка. Размещение на свободном участке территории. Площадку для отдыха можно сооружать на приподнятом блочном фундаменте или монолитном основании .
- «Кольцевая» терраса. Пристройка нуждается в прочном фундаменте и грамотном расчете. Возможно совмещение открытой части террасы и закрытой веранды .

Какой материал лучше выбрать
Для строительства открытой площадки чаще всего используют дерево. Это оптимальное решение, если планируется сооружение террасы своими руками.
Преимущества деревянных строений:
- простота обработки пиломатериалов;
- легкость материала и возможность сооружения «облегченного» основания;
- привлекательный внешний вид – дерево создает особую атмосферу комфорта и уюта ;
- универсальность – деревянная терраса органично смотрится с домами из разных материалов.
Минусы древесины:
- риск возгорания – на таких площадках лучше не обустраивать зону барбекю ;
- необходимость обработки дерева защитными составами, предупреждающими гниение и порчу насекомыми.
Кирпичная терраса – прочная конструкция, неприхотливая в уходе. Однако ее сооружение требует значительных финансовых затрат . Кроме того, такая пристройка не подойдет для каркасных и деревянных домов.

Разработка и согласование проекта
Определившись с типом террасы, ее размещением и материалом изготовления, необходимо составить эскиз будущей пристройки.
В план-проекте следует отобразить:
- точную конфигурацию, площадь и габариты пристройки;
- тип фундамента;
- массу сооружения;
- вид напольного покрытия, конструкцию крыши и вариант ограждения.
Размер террасы должен быть соразмерен с габаритами дома . Крохотные пристройки, примыкающие к просторному зданию, смотрятся нелепо.
Советы по планировке:
- терраса не должна быть менее 4 кв. м – сделать комфортной такую зону очень сложно;
- лучше отдать предпочтение прямоугольной пристройке – должно быть визуальное соответствие между главной частью дома и конфигурацией террасы;
- если планируется установка камина или печи, то необходимо усилить фундамент и продумать подвод водопровода к площадке.
Проект необходимо согласовать и одобрить. Без получения разрешительных документов терраса будет считаться самостроем , что в будущем усложнит продажу, сдачу в аренду или другие операции с недвижимостью.

Терраса к дому своими руками: ход работ
Рассмотрим порядок пристройки террасы к дому. В предлагаемом варианте используется столбчатый фундамент , опорные деревянные балки и дощатый настил . В конструкции предусмотрены крыша и ограждения.
Возведение фундамента
Для возведения столбчатого основания используют бетонные блоки или бордюрный камень. Второй вариант проще в реализации и дешевле.

