Стол барная стойка своими руками. Разновидности барных стоек
Стол барная стойка своими руками. Разновидности барных стоек
В условиях, когда площадь кухни достаточная, то барная стойка устанавливается с учетом ее основного назначения: просто по-быстрому присесть и выпить чашечку кофе или чая, или быстренько перекусить. В связи с этим назначением барная стойка и комплектуется: здесь присутствуют держатели для чашек, для стаканов, для фужеров, а также полка, на которой размещаются различные напитки. Полка закрепляется одной стороной на стене, а другой стороной крепится к краю кухонного гарнитура. Ее также допустимо расположить посреди свободной зоны.

Барная стойка на не большой кухне
Если площадь кухни небольшая, то барная стойка, скорее всего, является многофункциональной. Она может служить элементом, которая разделяют зону на кухню и на столовую. Если кухня совсем маленькая, то барная стойка будет выполнять функцию обеденного стола. В таком случае ее лучше расположить у стены.

Барная стойка вдоль стены
На кухнях, площадью 11 квадратных метров или приблизительно таких же, барные стойки выполняют в форме полуострова, как бы выступающего с боку. Чтобы более рационально использовать пространство на кухне, под столешницей размещают шкафчики и полочки. Это сделать довольно просто, поскольку этот элемент опирается на отрезки труб, которые крепятся к элементам конструкции.

В виде полуострова
Таким образом формируются многоступенчатые кухни, пользующиеся огромной популярностью. Дело в том, что на таких кухнях более удобно выполнять любые операции.
Как правило, барные стойки выполняют функции разграничения различных зон в квартирах-студиях. Разграничивают зону кухни, зону прихожей и зону отдыха: кому, как угодно. Зачастую, барная стойка – это не что иное, как продолжение рабочего стола, в виде острова или полуострова.

Барная стойка еще может выполнять роль перегородки, поэтому ее основу делают из гипсокартона, а сам элемент пристраивается с любой стороны.

Пристроенная к стене из гипсокартона
Другими словами, решений достаточно много, поэтому выбрать более подходящую для конкретных условий, совсем несложно.
Откидная барная стойка своими руками. Бар в домашних условиях
Представленный здесь домашний бар выполнен в элегантном стиле и продуман для эффективной работы бармена. Небольшой холодильник обеспечивает доступ к холодным напиткам и льду, а удобные шкафы позволяют удобно разместить всевозможные напитки. Хотя это «сухой бар» (без сантехники), дизайн можно изменить , для этого есть много способов. Если вы хотите сделать стационарную конструкцию, провести воду не проблема. Эта компактная угловая барная стойка имеет глянцевые черные фартуки из МДФ с декоративными аппликациями, образующими горизонтальный сетчатый рисунок на панелях. Столешница из вишневой фанеры расположена на L-образной коленной перегородке, что создает комфортное место для работы бармена. Откидные подъемные перегородки в барной стойке на одном конце обеспечивают простой доступ в рабочую зону. Ключевые компоненты - шкафы, ламинированная столешница, холодильник и отделка в азиатском стиле - создают основу домашнего бара.
Ниже вы видите чертеж и список деталей с размерами в дюймах. Умножьте значения на 2,54, чтобы перевести показатели в сантиметры.

Как собрать бар в домашних условиях смотрите в мастер классе на пошаговых фото.
Источник фото: www.blackanddecker.com/ideas-and-inspiration/projects/build-a-dry-bar
Барная стойка из дерева для дома
Большинство из нас хотят, чтобы его дом был особенным. Некоторым нравятся оборудованные новейшей техникой игровые комнаты, другие посвящают свободное время, чтобы сделать солидный кабинет с настоящей библиотекой, а еще кто-то хочет свой кинотеатр. Если у вас есть свободное пространство и вы хотите построить что-то интересное и оригинальное, нужно делать выбор. Есть много идей, но давайте рассмотрим то, что может поместиться в любой дом, не занимает много места и подходит как для холостяков, так и для семейных мужчин. Бар. Или, если быть более конкретным, барная стойка , вокруг которой вращается вся деятельность, и то, что производит наибольшее впечатление на ваших гостей. Здесь вы найдете конкретный пример с пошаговыми фотографиями, как сделать барную стойку из дерева для дома своими руками . Инструкция есть на сайте, ссылка под фото галереей.
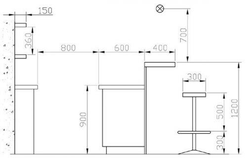
Барная стойка своими руками чертежи. Как сделать отдельно стоящую барную стойку для кухни своими руками
. Стандартная его высота составляет 110 см, выше чем стол на кухне. Барные стулья будет проще найти, если вы будете придерживаться такой высоты.
Б . Отвес должен быть не менее 20 см Но будьте осторожны: некоторые табуреты на несколько сантиметров выше или, наоборот, короче.
- Он задерживает пролитые напитки и не дает им попасть на колени.
- Он обеспечивает удобный подлокотник и позволяет правильно сесть.
- Самое главное – он заставляет выглядеть ваш бар более официально.
Это хорошая особенность, но не является необходимостью для барного стола.
Г . Минимальное расстояние табуретки от барной стойки – 60 см. Иначе будете чувствовать себя тесно и рука будет упираться в столешницу.
Д . Подошва рельса должна быть от 17 до 25 см от пола. Металлические перила (обычно латунь) стоят дорого, поэтому многие используют для барной стойки простой карниз.
Чтобы построить бар, используйте эти стандартные правила и размеры, а также чертеж, который можно увидеть ниже.

Некоторые поставщики продают заглушки, которые легко установить своими руками, но это может выглядеть громоздко. Лучшее решение: запустить молдинг около 1,5 см мимо задней кромки панели сверху.
Мнение эксперта
Михайлова Мария Васильевна
Менеджер магазина по продаже мебели. Знает все об уюте и интерьере
Затем приклеить торцы из блоков, вырезанных из древесины, с подобным рисунком. Удерживайте блоки на месте около минуты.
После того как клей полностью высохнет, промойте и добавьте водосливы.

С молдингом вы получаете большую площадь рабочей поверхности. Чтобы этого избежать, предварительно обработайте торцевые поверхности герметиком, который частично заполняет поры.
Пара унций из полиуретана, смешанного с парой ложек растворителя (водой или уайт-спиритом, в зависимости от типа полиуретана), подходит для этого очень хорошо. Если вы промажете уплотнения силиконом, то вашей стойке бара ничего не грозит.

Так какой материал больше подходит для столешницы, и чего не побоится ваша рука? Большинство “баров” очень сложные по строению. Для обычного подходят столешницы из двух видов дерева. Нижний слой – это фанера. Верхним может быть плитка, твердые сорта дерева, металлопластик или даже камень.
Цены варьируются от 10$ до 40$ за погонный метр в зависимости от вида древесины и ширины. Большинство поставщиков поставляют столы длиной до 1.8 метра, однако некоторые из них предлагают до 2 метров длины. Ширина варьируется от 50 до 120 см, а толщина до 15 см.

Конечно, в домашних условиях вырезать стол по чертежу можно, но все же заказ готовой столешницы для дома заметно облегчит ваши усилия.
Чертеж барной стойки для дома
Прежде чем начать, нужно подробно изучить чертеж, как сделать барную стойку.


- Подготовить материал.
- Подготовить инструмент.
- Подготовить чертеж, прежде чем начать резать древесину.

Необходимые инструменты для столешницы
Приобретите необходимые инструменты и материалы для проекта, прежде чем начать. Так, вы сэкономите время и нервы.
Необходимые инструменты для этого проекта
- Воздушный компрессор,
- Степлер,
- Строительная пена,
- Хомуты,
- Дрель,
- Лобзик,
- Уровень,
- Торцовочная пила,
- Защитные очки,
- Клей для древесины.

Необходимые материалы
- 2 х 4 лист ДСП,
- 3 х 4 лист фанеры,
- Молдинг,
- Пивной кран (комплект),
- Строительный клей,
- Гипсокартон,
- Пена для изоляции,
- Деревянные изделия для отделки,
- Краска и лак,
- Каменное или деревянное основание.
Оборудование
Холодильная
Не рассчитывайте на домашний холодильник для вашего бара. Если вы собираетесь пить главным образом пиво, подумайте о том, чтобы сделать свой холодильник для кегов.
Если вам нужно держать бутылочное пиво, охлажденные вина или холодные коктейли, то можно использовать мини-холодильник под барной стойкой для напитков с контролем температуры. Это является самым эффективным способом дать вашим напиткам достаточное количество холода.

Осветительные приборы
Мало кто любит подвал, где светит только несколько мерцающих флуоресцентных ламп. И бар не должен быть темным и пыльным . Правильное освещение помогает поднять настроение и настроить на нужный лад.
Наборы светодиодных лент – это простой и доступный способ придать бару интересное свечение. Гибкие световые полосы выпускаются в нескольких цветах и могут быть нарезаны длиной до 5 см.
Барная стойка чертежи. В чем ее смысл
Ситуация, вызвавшая массовое появление барных стоек в быту, такова. Технология монолитного строительства позволила предлагать на продажу квартиры свободной планировки – голые коробки с окнами и входной дверью. В самых недорогих их них и мест общего пользования изначально нет, только канализационный, водопроводные, отопительные и газовый стояки да вводный щиток в электросчетчиком. Свободная планировка дает возможность обзавестись жилплощадью в расчете на прибавление в семье, не убивая себя ипотекой сразу же. А барная стойка в квартиру свободной планировки не только добавит ей стиля, но и позволит сэкономить сумму и/или труд, несоизмеримо большие необходимых для ее устройства.
Прокладка по квартире коммуникаций, возведение перегородок и отделка комнат стоят недешево. В итоге квартира свободной планировки обходится примерно во столько же, как и под ключ, но позволяет, во-первых, растянуть расходы по времени, что уже хорошо. Во-вторых, если наглухо отгородить только спальню, детскую, туалет и ванную, а остальное жилое пространство организовать по принципу квартиры-студии, то и общая экономия получится значительной, до 30% за квадрат жилой площади. Не верите? Перегородка из ПГБ длиной всего 4 м при высоте потолка 2,7 м это почти 22 кв. м отделки стен и 2,7 куба каменной кладки. Плюс, как минимум, лишних 4-6 розеток, 1-2 светильника и потребное количество электропроводки с соответствующей сложностью работ.
Особой тщательности требует зонирование кухонного «острова»: кухня помещение одновременно и общее, и личное, когда там хозяйка орудует. Сделать барную стойку – практически единственный способ эффективно, удобно и красиво отделить кухонную зону от гостиной (столовой). Включая возможности для устройства вентиляции, чтобы кухонный чад не расходился по всей квартире.

План удобной мини-кухни с барной стойкой
Примечание: барная стойка для кухни, совмещенная с обеденным столиком, позволяет, кроме этого, отдать больше места под прочие комнаты или сэкономить на общей площади. См., напр, на рис. план обустройства кухни размерами всего 2,4х2,1 м с барной стойкой. Кухни в блочных хрущевках больше, но эта удобнее.