Как правильно расположить арматуру в ленточном фундаменте. Преимущества и недостатки ленточного фундамента
- Как правильно расположить арматуру в ленточном фундаменте. Преимущества и недостатки ленточного фундамента
- Шаг вертикальной арматуры в фундаменте. Шаг установки
- Как работает арматура в ленточном фундаменте. Расчетный этап
- Армирование фундамента в один ряд. Определение глубины заложения и высоты ленты
- Армирование фундамента сеткой. Армирование монолитного фундамента
- Армирование фундамента чертеж. Как делать вязку арматуры под ленточный фундамент
- Армирование фундамента ленточного. Сколько нужно арматуры?
- Шаг хомутов в ленточном фундаменте. Армирование углов и мест примыкания ленточного фундамента
- Ленточный фундамент. Особенности конструкции
Как правильно расположить арматуру в ленточном фундаменте. Преимущества и недостатки ленточного фундамента
Ленточный фундамент – идеальный вариант для строительства своими руками бани, гаража, летней кухни и других построек. Подойдет он и для возведения собственного загородного дома. Такое основание отличается простой конструкцией и понятной методикой изготовления. Среди его прочих преимуществ выделяют:
Небольшая стоимость. Все материалы, используемые в строительстве, стоят относительно недорого. К тому же не понадобится привлечение сложной спецтехники.
Высокая скорость возведения. Все работы можно провести за один день. Еще несколько недель понадобится для высыхания конструкции.
Возможность самостоятельного строительства. Потребуются минимальные навыки и знание технологии.
Долговечность. При условии грамотной организации тепло- и гидроизоляции конструкция прослужит несколько десятков лет.
Универсальность. Такое основание подходит для грунта любого типа. Даже если на участке почва неоднородна по структуре, ленточный фундамент защитит строение от неравномерного проседания и появления трещин.
Способность выдерживать большую нагрузку. На основании такого типа можно возводить многоэтажные строения.
Возможность организации подвального помещения.
Недостатком оснований такого типа становится необходимость проведения точных предварительных расчетов. Ошибки проектирования в дальнейшем невозможно будет исправить.
К минусам относят и необходимость проведения всех работ за один день. Потребуется большое количество бетона. Замешивать его самостоятельно сложно. А потому при строительстве домов, скорее всего, придется покупать готовый раствор. Но при возведении гаража или бани удастся обойтись бытовой бетономешалкой.

Шаг вертикальной арматуры в фундаменте. Шаг установки
Для всех этих параметров тоже есть методики и формулы. Но для небольших строений поступают проще. По рекомендациям стандарта расстояние между горизонтальными ветками не должно быть больше 40 см. На этот параметр и ориентируются.
Как определить на каком расстоянии укладывать арматуру? Чтобы сталь не подвергалась коррозии, она должна находится в толще бетона. Минимальное расстояние от края — 5 см. Исходя из этого, и рассчитывают расстояние между прутками: и по вертикали и по горизонтали оно на 10 см меньше габаритов ленты. Если ширина фундамента 45 см, получается, что между двумя нитками будет расстояние 35 см (45 см — 10 см = 35 см), что соответствует нормативу (меньше 40 см).

Шаг армирования ленточного фундамента — это расстояние между двумя продольными прутками
Если лента у нас 80*30 см, то продольная арматура находится одна от другой на расстоянии 20 см (30 см — 10 см). Так как для фундаментов среднего заложения (высотой до 80 см) требуется два пояса армирования, то один пояс от другого располагается на высоте 70 см (80 см — 10 см).
Теперь о том, как часто ставить перемычки. Этот норматив тоже есть в СНиПе: шаг установки вертикальных и горизонтальных перевязок должен быть не более 300 мм.
Все. Армирование ленточного фундамента своими руками рассчитали. Но учтите, что ни масса дома, ни геологические условия не учитывались. Мы основывались на том, что на этих параметрах основывались при определении размеров ленты .
Как работает арматура в ленточном фундаменте. Расчетный этап
На проектной стадии важно квалифицированно рассчитать, какая нужна арматура для ленточного фундамента. Это позволит сформировать надежную основу, обеспечивающую прочностные характеристики возводимого здания при длительном ресурсе эксплуатации. Выполняя расчет на подготовительном этапе работ, следует проанализировать множество факторов:
- особенности почвы в условиях конкретной строительной площадки;
- действующие нагрузки, который воспринимает арматурный каркас;
- масса здания, обусловленная особенностями конструкции и используемыми материалами;
- климатические условия в районе строительства;
- реакцию почвы, связанную с близким расположением грунтовых вод и промерзанием грунта при отрицательной температуре.
Правила армирования ленточного фундамента предусматривают особый подход к выбору материала в основе
По результатам проектных работ определяется диаметр арматуры для ленточного фундамента и принимается решение о степени заглубления основания в грунт:
- На ограниченную до 0,5 м глубину для твердых почв, не склонных к пучению.
- На увеличенную ниже уровня промерзания грунта глубину погружения для проблемных почв.
На этом варианты не исчерпываются. Ведь строительная наука не стоит на месте, разрабатываются новые опорные конструкции, обладающие повышенной прочностью. Внедрен и проверен в эксплуатации новый вариант основания, когда монолитная усиленная плита заливается на предварительно выполненный ленточный армированный каркас. Какая лучше конструкция основы, определяют на проектной стадии с учетом конкретных условий реальной местности. В зависимости от особенностей выбранной согласно проекту основы, проектировщиками принимается решение, выполнять ли армирование ленты или производить армирование фундаментной плиты, а также какую арматуру лучше использовать для фундамента.
Армирование фундамента в один ряд. Определение глубины заложения и высоты ленты
В расчёт глубины заложения подошвы ленточного фундамента включают два фактора:
Уровень грунтовых вод
Уровень залегания грунтовых вод легко определить, если рядом с местом строительства есть колодец. Расстояние от уровня земли до поверхности воды в нём будет равно искомому параметру.
В отделе архитектуры и землеустройства местной администрации можно взять копию вертикальной съёмки с привязкой к стройучастку, где будет указан уровень грунтовых вод. Если нет ни того не другого, то этот показатель определяют взятием образцов почвы с помощью бурения грунта.
Глубина промерзания
Знать её необходимо по причине того, что воздействие на влажную почву при минусовой температуре в зимний период вызывает в ней замерзание воды. Этот процесс вызывает пучение грунта потому, что он в это время резко увеличивается в объёме.
Силы пучения могут легко выдавить вверх фундамент дома. Чтобы этого не происходило, подошва ленты должна находиться ниже зоны морозного пучения. Глубину промерзания определяют справочным путём либо таким же способом, как и при установлении уровня грунтовых вод.
Глубина заложения фундаментной ленты должна находиться на отметке выше уровня грунтовых вод и ниже уровня промерзания почвы. Количество продольных рядов зависит от высоты основания. Согласно СНиПу, расстояние между конструкционными рядами арматуры не должно быть более 40 см.
Сколько рядов арматуры нужно для армирования ленточного фундамента высотой 1 метр? Количество рядов в зависимости от высоты основания:
- до 70 см – без продольной арматуры;
- от 71 до 90 см – один ряд;
- от 91 до 130 см – два ряда;
- от 131 до 170 см – три ряда;
- от 171 до 210 см – четыре ряда.
Установлено, что на месте строительства грунтовые воды залегают на глубине 1200 мм, а уровень промерзания грунта равен 800 мм. В этом случае глубину заложения ЛФ принимают величиной 1 метр. Высота ленты с учётом нормативной высоты цоколя 150 -200 мм (расстояние от верха фундамента до уровня земли) будет равна 1150 – 1200 мм.
Армирование фундамента сеткой. Армирование монолитного фундамента
Монолитный фундамент – это цельная железобетонная плита, которая способна выдержать самые высокие нагрузки. Он может служить как «черновым» полом для будущего дома, так и прочным основанием для создания другого вида фундамента – ленточного или столбчатого. Главное требование при его возведении: поверхность земли должна быть пологой, без малейших уклонов и скатов.
Перед проведением работ нужно подготовить участок: выкопать котлован, уложить на его дно ровную песчаную подушку и залить тонким слоем бетона. Далее производится двухслойная гидроизоляция дна при помощи рулонных гидроизоляционных материалов.

Дальнейшее армирование монолитного фундамента своими руками заключается в создании сеток из прутков арматуры. Как и в случае с ленточными конструкциями, лучше всего использовать рифленую арматуру класса А3 толщиной не менее 12 мм . Она укладывается в двух направлениях, образуя ячейки размером не меньше 20 см по каждой стороне – как на фото ниже. Пересечения прутков укрепляются при помощи перевязки проволокой.
Однако существует более удобный аналог отдельным пруткам - в виде готовой сварной сетки из рифленых прутков ВР-1 с шагом ячейки от 200 мм . Ее использование избавит от необходимости самостоятельно укладывать и скреплять арматуру, поможет сэкономить силы и время.

Оптимальная высота плиты монолитного фундамента для жилого дома – 25-30 см. Такая толщина бетонного основания требуется двух поясов арматурной сетки – верхнего и нижнего, которые соединяются и укрепляются вертикальными гладкими прутками А1 толщиной 6 мм . Расставляются такие прутки на всех пересечениях сеток и фиксируются либо проволокой, либо сваркой. Далее производится заливка бетона.
Армирование фундамента чертеж. Как делать вязку арматуры под ленточный фундамент
Фундамент – это основа всего строения, гарант его долговечности и прочности. Армирование ленточного фундамента, чертежи и схемы должны быть подготовлены и рассчитаны заблаговременно.
Необходимость армирования
Фундамент представляет собой монолитную железобетонную конструкцию. Сам бетон – материал, который выдерживает значительные нагрузки только на сжатие. Чтобы увеличить прочность фундамента на растяжение и изгиб, необходимо изготовить металлический каркас. Причем показатели прочности увеличиваются только за счет обустройства рабочих продольных прутьев. Поэтому в качестве их используют толстые профилированные прутки диаметром 10÷14 мм. Поперечные элементы предназначены для создания пространственной геометрии фундамента, они не позволяют продольным пруткам смещаться при заливке бетонного раствора, и удерживают их в нужном месте. Для этих целей можно использовать гладкие или профилированные прутки диаметром 6÷9 мм.

Требования нормативных документов к материалам для армирования
Как правильно армировать ленточный фундамент, можно узнать, ознакомившись с нормативными документами. Требования, которые необходимо соблюдать при армировании монолитного ленточного железобетонного фундамента, изложены в СНиП 52-01-2003 .
Разновидности стальных прутьев, рекомендованных для армирования:
- горячекатаные гладкие или профилированные (Ø=3÷80 мм);
- термомеханически упрочненные профилированные (Ø=6÷40 мм);
- холоднокатаные профилированные или гладкие (Ø=3÷12 мм).

Важно! По сравнению с гладкими, профилированные прутья имеют лучшее сцепление с бетоном: это позволяет значительно увеличить надежность конструкции.
Требования к расположению прутьев в армокаркасе для ленточного фундамента:
- расстояние между продольными стержнями должно быть не более 0,4 м;
- шаг поперечных фиксирующих элементов должен составлять не более 0,5 м.
Минимальное относительное содержание рабочих продольных прутьев в железобетонном элементе должно составлять не менее 0,1 %.
Для вязки элементов железобетонной конструкции должна применяться только специальная стальная обожженная проволока (Ø=0,8÷1,2 мм).
Пример расчета армирования фундамента
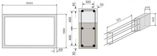
Попробуем рассчитать, сколько потребуется материалов для обустройства армирования конкретного ленточного фундамента с чертежами. Допустим, мы строим из строительных блоков (шириной 0,4 м) небольшой загородный дом с габаритными (внешними) размерами 5×8 м. Характер почвы на нашем участке позволяет сделать высоту полосы 0,9 м, ее ширину 0,4 м, что соответствует ширине строительного материала стен. В арматурном каркасе для ленточного фундамента будем использовать продольные рабочие прутья диаметром 12 мм и □-образные поперечные хомуты, изготовленные из прутков диаметром 8 мм.
Армирование мелкозаглубленного ленточного фундамента:

На фото видно, что расстояние между рабочими продольными прутьями (0,4 м) и шаг □-образных поперечных хомутов (0,5 м) выбраны в соответствии с требованиями нормативных документов.
Проверяем относительное содержание продольных рабочих прутков в нашей железобетонной конструкции. Для этого воспользуемся следующими терминами и обозначениями:
- h – высота фундамента (900 мм);
- w – ширина фундамента (400 мм);
- Sₒ – площадь поперечного сечения фундамента;
- Sₐ – суммарная площадь поперечных сечений продольных прутьев (6 штук);
- r – радиус продольного прутка (6 мм), который равен d/2, где d – диаметр прутка (в нашем случае d=12 мм);
- D – относительное содержание рабочих прутков в «теле» фундамента.
Sₒ = h∙w = 900∙400 = 360000 мм²
Sₐ = 6∙π∙r² = 6∙3,14∙6² = 678,24 мм²
D = (Sₐ∙100)/ Sₒ = (678,24∙100)/360000 = 0,1884 ≈ 0,19 % (что в 1,9 раза превышает минимально допустимое значение, то есть схема армирования ленточного фундамента выбрана нами правильно).
Расчет количества продольных прутьев
Для того чтобы определить сколько стандартных продольных прутьев (6 м) нам необходимо, воспользуемся следующими величинами:
- L – длина фундамента (8000 мм);
- W – ширина фундамента (5000 мм);
- P – периметр;
- N – количество продольных элементов (в нашем случае 6 штук);
- X – общая протяженность продольных прутьев.
P = (L+ W)∙2 = (8000 + 5000)∙2 = 26000 мм = 26 м
X = P∙N = 26∙6 = 156 м
К полученной величине необходимо добавить 20 % (материал для изготовления Г-образных или П-образных элементов для правильного армирования углов и обеспечения достаточного нахлеста при стыковке элементов).
Xдоп = X∙0,2 = 156∙0,2 = 31,2 м
Окончательная общая длина продольного арматурного прутка:
Xок = X + Xдоп = 156 + 31,2 = 187,2 м
Стандартная длина арматурного прутка составляет 6 м. Осталось посчитать, сколько таких прутков необходимо: Xок/6 = 187,2/6 = 31,2 ≈ 32 штуки.
Армирование фундамента ленточного. Сколько нужно арматуры?
Прежде чем отправиться в магазин для покупки материала, нужно узнать, сколько его понадобится для армирования ленточного фундамента. Для этого следует заранее подумать, какая схема армирования ленточного фундамента станет лучшим выбором и провести расчеты для конкретного объекта.

Пример армирования каркаса для фундамента
При строительстве небольших домов, гаражей и бань обычно используется следующая конфигурация каркаса:
- 2 пояса: верхний и нижний;
- каждый пояс состоит из 3-4 прутов арматуры;
- оптимальное расстояние между стержнями – 10 сантиметров. Учтите, что расстояние от арматуры до краев будущего фундамента должно составлять не менее 5 сантиметров;
- соединение поясов выполняется при помощи хомутов или отрезков арматуры при шаге 5-30 сантиметров, в зависимости от участка армирования.
Такая схема оптимальна. Теперь, зная размеры будущей постройки, совсем не сложно провести соответствующие расчеты.
Допустим, вы хотите построить просторную каркасную или деревянную дачу площадью 150 квадратных метров с внешними стенами периметром 50 метров. Проведем расчеты, исходя из этого. Используем при армировании ленточного фундамента СНиП соответствующий и описанные выше характеристики.
Имеем два пояса по три прута в каждом. Итого – 6 умножаем на 50 = 300 метров основной арматуры. Учитываем количество перемычек, которые укладываются с шагом 30 сантиметров. Для этого 50 метров делим на 0,3. Получаем 167 штук. Поперечные перемычки в данном основании будут иметь длину 30 сантиметров, а вертикальные – 60 сантиметров. На вертикальные перемычки понадобится 167х0,6х2=200,4 метра. На горизонтальные – 167х0,3х2=100,2 метра. Итого, потребуется 300 метров толстой рифленой арматуры и 300,6 метра более тонкой, гладкой арматуры. Получив эти числа, можно смело отправляться в магазин за материалом – ленточный фундамент без армирования долго не протянет. Некоторые специалисты рекомендуют брать арматуру с запасом в 10-15%. Ведь какое-то количество материала понадобится, чтобы усилить угловые части ленточного фундамента и уйдет на стыковку.
Шаг хомутов в ленточном фундаменте. Армирование углов и мест примыкания ленточного фундамента
Как правило, последовательность сборки арматурного каркаса фундамента состоит из последовательной сборки прямых участков и связи их в углах фундамента и в местах примыкания внутренних перегородок. На эти участки стоит обращать особенное внимание, так как основные изгибающие и скалывающие напряжения возникают здесь.
Армирование углов ленточного фундамента и мест примыкания стен проводят при помощи жестких лапок, Г и П-образных хомутов.
При использовании жесткой лапки, напоминающей кочергу, длиной не менее 35d рабочего стержня, гнутая часть арматуры располагается таким образом, чтобы внешние стержни в обоих направлениях были соединены, а внутренние стержни привариваются к внешним прутьям. Этим способом можно избежать распространенной ошибки при армировании– отсутствия связи между внешними и внутренними стержнями. В местах изгиба с внутренней стороны ставится вертикальная арматура.
Принцип установки Г-образного хомута аналогичен, только вместо лапки используют гнутый стержень стороной не менее 50d рабочей арматуры. Здесь также внутренние стержни одного направления соединяются с внешними прутьями другой стороны. Хомуты П-образной формы позволяют соединять параллельные внешние и внутренние стержни в одном направлении соединить к перпендикулярно расположенному внешнему стержню в другом направлении. На углах фундаментов применяют два таких хомута, на местах примыкания стены только один.
Ленточный фундамент. Особенности конструкции
Фундаментная система ленточного типа изготавливается в виде монолитной ленты из железобетона. Она располагается под каждой несущей стеной постройки. Используется при возведении тяжелых зданий из бетона, камня или кирпича, для зданий с подвалом,или подземным гаражом. Устанавливается на грунтах любого типа, исключение просадочные и торфяники.
В зависимости от степени углубления в почву различают мелкозаглубленную и полнозаглубленную конструкцию. Первый вариант используется для легких каркасных построек. Бетонная лента опускается в землю на 540-600 мм. Полнозаглубленный фундамент ставится под тяжелые постройки. Он углубляется на 240-300 мм ниже отметки уровня промерзания почвы. Иногда встречается незаглубленный вариант. Он ставится на неподвижных почвах или на скалах. Для домов он не пригоден, используется для хозяйственных построек.
Фундамент-лента бывает монолитным или сборным. Монолитом называется цельная отливка из бетона. Она изготавливается за одну заливку, обладает максимальными прочностными и несущими характеристиками. Сборная система собирается из бетонных блоков заводского изготовления. Ее эксплуатационные характеристики немного хуже, чем у монолитного основания. При укладке блоков нельзя обойтись без специальной техники.
По требованиям СНиП монолитное сооружение должно заливаться за один прием. Самостоятельно замесить такой объем раствора невозможно, поэтому приходится обращаться к специализирующимся на производстве бетона компаниям. В этом случае готовую смесь в миксере привезут на строительную площадку и зальют в подготовленную опалубку. Непрофессиональные строители в силу ряда причин иногда пренебрегают этим правилом и проводят поэтапную заливку. Это отрицательно сказывается на прочности получившейся конструкции.
Перед монтажом фундамента необходимо рассчитать его основные параметры. Для этого важно учесть множество факторов: глубину залегания подземных вод, уровень промерзания почвы, вес здания, тип грунта. Самостоятельно сделать это правильно очень сложно. Лучше всего обратиться к специалистам. Они выполнят геодезические испытания и полностью рассчитают систему.