Виды потолков Армстронг. Технические характеристики
- Виды потолков Армстронг. Технические характеристики
- Типа Армстронг. Устройство подвесного потолка Армстронг
- Потолок Армстронг цвета. Все товары
- Потолок Армстронг бесшовный. Элементы системы
- Навесной потолок Армстронг. Особенности
- Потолок Армстронг из чего состоит. Преимущества и недостатки
- Потолок армстронг: виды плит. Потолочные плиты Армстронг характеристики и виды
Виды потолков Армстронг. Технические характеристики
Потолочные подвесные конструкции используются во всем мире, поэтому вы всегда можете попросить у продавца сертификаты соответствия общепринятым стандартам.
Стандартные технические характеристики подвесной конструкции Armstrong таковы:
- Размер одной плитки составляет от 600 кв. мм, также, в продаже имеются плитки размером 1200 х 600 мм.
- Толщина плитки варьируется от 0,8 до 2,5 сантиметров.
- Вес квадратного метра конструкции зависит от веса материалов отделки и может колебаться в пределах от 2,5 килограмм до 8.
- В зависимости от характеристик отделочного материала различается влагостойкость потолка – от 70 до 100%.
- Конструкция Armstrong проходит специальную сертификацию (у продавца или производителя можно попросить соответствующие документы) и обладает высокой степенью экологичности, поэтому такие потолки абсолютно безопасны для человека. Эти конструкции разрешены к установке в детских образовательных и медицинских учреждениях, что говорит об их высоком качестве.
- Отражающая способность – до 90%, то есть все потолки Armstrong обладают хорошим светоотражением.
- Коэффициенты звукопоглощения зависят от материалов плит и колеблются в диапазоне от 0,2 до 0,5.
- Armstrong отличается низкой степенью горючести. Это огнестойкий потолок, так как большинство материалов, из которых изготавливают плиты, негорючие. Из-за разнообразия материалов пожарные характеристики также могут быть разными и определяются показателем, имеющим название «предел огнестойкости» (это время, которое материал противостоит возгоранию).
- Согласно ГОСТ, системы Armstrong являются конструкциями невысокого класса опасности и их можно использовать их в помещениях различного предназначения.
- Если потолочные плиты подвергаются дополнительной обработке специальными составами (это делается с внутренней стороны), то они могут долго противостоять коррозии и влаге. В продаже имеются плиты для потолка с тремя видами кромки: «Microlook», «Tegular», «Board», так как планки подвесной системы могут быть разной ширины и разной формы (ровные прямые края или края «ступеньками»).
Типа Армстронг. Устройство подвесного потолка Армстронг
Подвесная потолочная конструкция состоит из двух частей:
- Каркас – система металлических профилей, которые фиксируют с помощью подвесов и крепёжных изделий к прочному основанию (плитам перекрытия). Они служат для крепления облицовки, вентиляционных решёток и декоративных элементов потолка.
- Декоративная или лицевая часть – её поверхность состоит из панелей квадратной или прямоугольной формы (они могут быть из минерального волокна или каменной ваты, акрила, зеркальных полотен, стекла, металла и т. д.).
Металлические направляющие крепят к железобетонным или деревянным перекрытиям по определённой схеме. В собранном виде они образуют ячейки квадратной или прямоугольной формы. Их стороны должны соответствовать размерам укладываемых плит – 600х600 или 1200х600 мм.
Полученные «соты» затем заполняют потолочными плитами. Устройство подвесных потолков типа Армстронг подразумевает использование панелей стандартной длины, ширины и толщины из одного материала или их комбинаций. В ячейках также укладывают решётки для вентиляции и размещают светильники.
Разновидности и технические характеристики
По функциональному назначению, дизайну и цене все виды подвесных потолков Армстронг условно разделяют на такие группы:
- Универсальные – устойчивые к воздействию влаги и огня, гигиеничные конструкции, могут использоваться в любых зданиях.
- Функциональные или влагостойкие – для помещений с повышенной влажностью и с резкими колебаниями температур (кухни заведений общественного питания, прачечные, сауны, закрытые бассейны).
- Акустические – для снижения уровня шума и улучшения звукоизоляции, что актуально для производственных цехов, ночных клубов, кинотеатров, студий звукозаписи.
- Гигиенические – для объектов с высокими санитарными требованиями (фармацевтическая и пищевая промышленность, больницы, поликлиники, лаборатории, детские дошкольные учреждения).
- Эконом-класса – с оптимальным соотношением доступной цены, качества, функциональности и долговечности для установки в офисах, цехах, нежилых, административных и общественных зданиях.
- Дизайнерские – эксклюзивные модели для реализации авторских дизайн-проектов любой сложности при оформлении элитных жилых и общественных интерьеров (номера и холлы отелей, залы выставочных центров, ресторанов и бутиков, кабинеты руководителей и т. д.). Панели и декоративные элементы для них изготавливаются в индивидуальном порядке.
Потолок Армстронг цвета. Все товары
Всего в категории Армстронг Потолочные панели цветные и подгруппах - 20 наименования товаров.
Потолочная панель Neeva (Black-Черный, кромка не прокрашена) board 600x600x15, Армстронг , Евросоюз-США
Цена с НДС - руб./м2
розница- 1836.00
опт- 1786.00
договор- 1753.00
Стоимость товара зависит от курса EUR
BP 2695M BK, упаковка 40 шт. = 14.4 м2, кромка не прокрашена, звукопоглощение alphaW=1, влагостойкость RH=95%
Потолочная панель Neeva (Navy-Темно-синий, кромка не прокрашена) board 600x600x15, Армстронг , Евросоюз-США
Цена с НДС - руб./м2
розница- 1751.00
опт- 1704.00
договор- 1672.00
Стоимость товара зависит от курса EUR
BP 2695M NY, упаковка 40 шт. = 14.4 м2, кромка не прокрашена, звукопоглощение alphaW=1, влагостойкость RH=95%
Потолочная панель Neeva (Metal-Металлик, кромка не прокрашена) board 600x600x15, Армстронг , Евросоюз-США
Цена с НДС - руб./м2
розница- 1965.00
опт- 1911.00
договор- 1875.00
Стоимость товара зависит от курса EUR
BP 2695M MT, упаковка 40 шт. = 14.4 м2, кромка не прокрашена, звукопоглощение alphaW=1, влагостойкость RH=95%
Потолочная панель Neeva (Cement-Цемент, кромка не прокрашена) board 600x600x15, Армстронг , Евросоюз-США
Цена с НДС - руб./м2
розница- 1724.00
опт- 1677.00
договор- 1646.00
Стоимость товара зависит от курса EUR
BP 2695M CG, упаковка 40 шт. = 14.4 м2, кромка не прокрашена, звукопоглощение alphaW=1, влагостойкость RH=95%
Потолочная панель Neeva (Black, кромка не прокрашена) board 600x1200x15, Армстронг , Евросоюз-США
Цена с НДС - руб./м2
розница- 1836.00
опт- 1786.00
договор- 1753.00
Стоимость товара зависит от курса EUR
BP 2696M BK, упаковка 40 шт. = 14.4 м2, кромка не прокрашена, звукопоглощение alphaW=1, влагостойкость RH=95%
Потолочная панель Neeva (Navy, кромка не прокрашена) board 600x1200x15, Армстронг , Евросоюз-США
Цена с НДС - руб./м2
розница- 1751.00
опт- 1704.00
договор- 1672.00
Стоимость товара зависит от курса EUR
BP 2696M NY, упаковка 40 шт. = 14.4 м2, кромка не прокрашена, звукопоглощение alphaW=1, влагостойкость RH=95%
Потолочная панель Neeva (Metal, кромка не прокрашена) board 600x1200x15, Армстронг , Евросоюз-США
Цена с НДС - руб./м2
розница- 1965.00
опт- 1911.00
договор- 1875.00
Стоимость товара зависит от курса EUR
BP 2696M MT, упаковка 40 шт. = 14.4 м2, кромка не прокрашена, звукопоглощение alphaW=1, влагостойкость RH=95%
Потолочная панель Neeva (Cement, кромка не прокрашена) board 600x1200x15, Армстронг , Евросоюз-США
Цена с НДС - руб./м2
розница- 1724.00
опт- 1677.00
договор- 1646.00
Стоимость товара зависит от курса EUR
BP 2696M CG, упаковка 40 шт. = 14.4 м2, кромка не прокрашена, звукопоглощение alphaW=1, влагостойкость RH=95%
* Некоторое оборудование, вентиляторы и комплектующие можно заказывать в розницу на сумму меньше 10'000,00 руб. В этом случае уточняйте возможность отгрузки, адрес склада и розничную цену у менеджеров по телефону и электронной почте. При заказе одного вида продукции на сумму больше 500'000,00 руб. действуют спеццены.
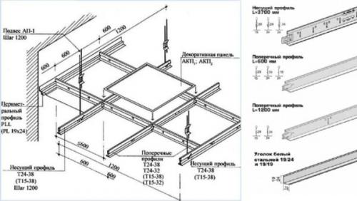
Потолок Армстронг бесшовный. Элементы системы
Потолочная система Армстронг состоит из набора элементов, которые легко между собой соединяются. Одно из ее достоинств — модульность, которая позволяет получить потолок любого размера и конфигурации. Проблема только с нелинейными формами — они не предусмотрены и штатных решений нет. Потому этот вид подвесного потолка используется только в квадратных и прямоугольных помещениях.

Это вариант потолка Армстронг со смешанным заполнением
Профили
Профили для потолка армстронг деалют из легкого алюминиевого сплава. На верхней части профилей нанесена перфорация, при помощи которой они крепятся к подвесам и стыкуются между собой. Нижняя часть профилей — та, которая видна из помещения — может иметь серебристый цвет, но чаще — белый. Также есть черные и золотистые, можно найти другие цвета, но их уже надо искать.

Чаще всего профиля окрашены в белый цвет
Длина профилей 600 мм, 1200 мм, 3600 мм. Несущие профили должны быть цельными (в случае необхоидимости могут сращиваться), потому длину подбираем такую, чтобы профиль был не короче помещения. Его нарезают на участки нужной длины.
Поперечные профили набираете частично длиной 120 см, частично — 60 см. Придется считать, сколько нужно каких для создания подвесной системы в вашем случае. Резать их не получится — по краям сделаны выступы, при помощи которых они стыкуются с несущими.

Монтажная схема потолка армстронг и ее компоненты
Несущие и поперечные профили бывают двух размеров — под разные типы плит: с полочкой на 15 мм и 24 мм. Разной бывает и «спинка» — под разную толщину плит (19 мм, 24 мм и 29 мм).
Есть еще пристенные профили. Они выполнены в виде уголка, монтируются по периметру помещения. На них опираются крайние плиты. Они тоже есть с полочками разной величины — 19 мм и 24 мм.
Плиты
Плиты для подвесных потолков Армстронг бывают двух размеров — 120 см * 60 см и 60 см * 60 см. Второй вариант более распространен, возможно потому, что квадраты лучше воспринимаются, чем прямоугольники. Есть еще они разной толщины — от 6 мм до 19 мм. Чем больше толщина, тем большую степень звукоизоляции имеет такой потолок, но во многом эта характеристика зависит от материала, из которого изготовлены плиты. А бывают они нескольких видов:
- Класс Эконом. Наиболее дешевые из всех, они имеют высокую гигроскопичность и плохо переносят повышенную влажность. Влагу они впитывают в лбом виде — в виде жидкости при подтоплении соседями сверху или из воздуха. Напитавшись влагой, становятся тяжелыми, начинают менять форму — прогибаться, что портит внешний вид. В общем, вариант дешевый, но хорошо себя чувствует в помещениях с климатконтролем и постоянной влажностью. В эту группу входят Oasis (Оазис) и ,Oasis+, Cortega (Гортега), Tatra (Татра), Bajkal (Байкал).

Плиты для потолка Армстронг касса Эконом
- Класс Прима (Prima). Это более дорогие панели, но они и по характеристикам намного лучше. Во-первых, они более прочные, имеют повышенную стойкость к влаге (85% против 65% у класса Эконом). Лучше они и в плане звукоизоляции и внешнего вида. К этой группе относятся коллекции Adria (Адриа), Casa (Каса), Cirrus (Циррус), Plain (Плэйн), Duna+ (Дюна плюс).

Плиты класса Прима
- Влагостойкие. Этот вид плит для подвесного потолка можно использовать во влажных помещениях или при повышенной влажности воздуха. Есть два вида Mylar (Мулар), Newtone Residence (Ньютон Резиденс).

Влагостойкие плиты для потолка Армстронг
- Акустические. Имеют улучшенные характеристики по звукопоглощению. Подходят для монтажа в торговых залах, офисах. Выпускаются в двух видах: Neeva (Ниива), Frequence (Фриквенс).
- Гигиенические. Эти плиты хорошо моются, предназначены для медучреждений и предприятий пищевой индустрии. Вид всего один — Bioguard (Биогуард).

Акустический и гигиенические — для специфического применения
- Дизайнерские. Эти плиты для потолков армстронг значительно отличаются по внешнему виду от всех остальных. Они используются при оформлении клубов, ресторанов, баров. Имеют презентабельный, а порой и роскошный вид, но стоят уже немало. Модификаций несколько: Visual (Вижуал), Cellio (Селлио), Graphis Linear (Графис Лайнер), Cirrus Image (Циррус Имидж).

Навесной потолок Армстронг. Особенности
Потолок Armstrong является одним из самых распространенных видов покрытия, которое можно увидеть в жилых помещениях и в офисных зданиях. Из себя он представляет конструкцию из плит, расположенных в виде ячеек на металлическом каркасе. Такой потолок довольно легко монтируется и не обладает высокой стоимостью – именно поэтому пользуется широкой популярностью.
Стоит отметить, что название было получено в честь производителя, который был первым, кто завез подобные потолки в Россию.
Конструкция покрытия бывает разной, от чего зависит не только внешний вид, но и акустика потолка. Какое-то время компания предлагала использовать два вида плит: квадратные – с размером 600х600 и прямоугольные – с размером 1200х600 мм. Однако второй вид вызывал некоторые опасения, ведь возникала угроза обвала конструкции, поэтому от них было принято решение отказаться. Кроме того, выделяются такие технические характеристики плит Armstrong, как толщина (8-25 мм) и вес (от 2,7 до 8 кг/м2).
В одной стопке находится от 8 до 22 плит, которые можно хранить при температуре от 15 до 30 градусов тепла и при влажности воздуха до 90% . Согласно ГОСТ эксплуатировать Armstrong следует при температуре не ниже 12 градусов тепла и не более 70% влажности воздуха в помещении. Предел огнестойкости исчисляется несколькими минутами.
Такое покрытие может быть мягким или жестким. Мягкий потолок бывает либо минеральным, либо органическим. Жесткие плиты весьма тяжелые, поэтому их необходимо укреплять при помощи дорогостоящих креплений и обрабатывать специальными инструментами . Из этого следует, что их, как правило, выбирают исключительно для оформления дорогих квартир или загородных домов.
Характеристики минеральных плит также играют против них – эксперты выяснили, что такой потолок не отличается экологичностью и вреден для здоровья. Теперь большинство покупателей обращают свое внимание на органические плиты, ведь они создаются из бумажных отходов и потому практически безвредны.
Стоит добавить, что подправить такую плиту можно, используя обычный нож, – не придется дополнительно тратиться на инструменты.
Подвесная конструкция состоит из потолочных плит и профилей четырех видов: поперечного, стенового, несущего и продольного, а также из подвесов и крепежей. Профили Armstrong изготавливаются из различных материалов и различных форм: либо это окрашенный металл, либо металлопластик с отверстиями для подвески.
Поверхность долгое время не требует ремонта и очищается от пыли с помощью обычных сухих щеток или влажных тряпочек. Если потолок расположен довольно низко, то его даже можно пылесосить. При замене какого-то элемента конструкции нельзя убирать подвесы или изменять каким-то образом его длину.
Потолок Армстронг из чего состоит. Преимущества и недостатки
Чаще всего выполняют монтаж потолка Армстронг в общественных учреждениях, при отделке офисов, предприятий торговли, кафе, а также они неплохо вписываются в обстановку квартир.
Среди достоинств этих потолочных конструкций значатся:
- невысокая стоимость;
- отсутствие необходимости в предварительной подготовке базового основания;
- достаточная степень звуко- и теплоизоляции;
- большое разнообразие плит позволяет реализовать любое дизайнерское решение;
- несложный монтаж подвесного потолка Армстронг, для чего не требуется участие профессионалов;
- наличие возможности сделать незаметными коммуникации и системы вентиляции;
- обеспечение легкого доступа в межпотолочное пространство для проведения осмотра и ремонта;
- беспроблемная установка осветительных устройств;
- имеется возможность демонтировать и повторно использовать элементы системы, поскольку она полностью разборная.

Недостатков у Армстронга немного:
- он понижает высоту комнаты не меньше, чем на 20 сантиметров, поэтому использовать его в квартирах не всегда возможно;
- потолок нельзя смонтировать в помещении, имеющем нестандартную конфигурацию;
- конструкция не защитит предметы обстановки в случае протечки сверху;
- он плохо переносит повышенную влагу, от которой органические плиты начинают размокать и подвергаться деформации.
Популярность таких потолочных систем, благодаря многочисленным достоинствам, не уменьшается. Выполнить своими руками монтаж потолка Армстронг достаточно просто и в офисе, и в жилом помещении.
Потолок армстронг: виды плит. Потолочные плиты Армстронг характеристики и виды
Наиболее оптимальным решением для создания подвесного потолка в офисе, магазине, школе или других крупных помещениях является потолок Армстронг. Популярность этих минеральных плит на сегодняшний день объясняется их прекрасными техническими характеристиками, которые и будут рассмотрены в этой статье.
Краткое описание
Данный модульный потолок имеет ряд положительных свойств. Среди них следует отметить следующие технические:
- огнестойкие свойства;
- возможность противостоять воздействию влаги;
- маленький вес панелей, отличающихся хорошей гибкостью;
- хорошие звукоизоляционные характеристики;
- благодаря удачной конструкции, в систему потолка можно установить лампы и светильники различной величины, а также вентиляционные решетки;
- не требуют дополнительно окраски или другого вида отделки;
- возможность зонировать пространство;
- прекрасные теплоизоляционные свойства, что позволяет уменьшить затраты на обогрев помещения;
- возможность монтажа на большой площади без использования специальных подпорок или перегородок.
Из-за своей легкости потолочные плиты Армстронг иногда, при резких сквозняках могут колебаться в своих ячейках вверх-вниз
Достоинства потолочных плит Армстронг в части эксплуатационно-экономических характеристик:
- легкость разборки и сборки из-за удобной величины панелей;
- простоту установки, которая позволяет размещать под плитами системы вентиляции, водопровода и электричества;
- экологичность всех используемых материалов;
- способность скрыть все неровности и другие погрешности потолка;
- небольшие физические затраты для ухода за ним;
- высокий показатель отражения света;
- широкий выбор панелей, отличающихся между собой по цвету, фактуре и покрытию;
- высокое качество плит, которые обладают длительным сроком годности;
- небольшую стоимость.
Несмотря на широкий перечень плюсов, потолки Армстронг имеют и некоторые недостатки, знать о которых следует перед приобретением подобной системы. Рассмотрим негативные свойства данных панелей:
- в местах с частыми колебаниями температур или показателями влажности, может изменяться цвет потолочных панелей;
- неспособность противостоять ударам и другим механическим нагрузкам;
- не могут удержать воду в случае затопления помещения с верхнего этажа или крыши, даже если они и будут влагостойкими.
Область применения
Благодаря наличию всех выше перечисленных преимуществ, рассматриваемые потолочные панели можно устанавливать:
- в больницах (гигиенические модели или функциональные);
- спортзалах, клубах, кинотеатрах (акустические);
- бассейнах, ванных комнатах (влагостойкие);
- офисах, школах, магазинах (панели эконом класса) и многих других помещениях.
Кроме этого, при желании их установку разрешается проводить в любой части загородного дома или квартиры (даже деткой комнате), потому что материал, из которого делается потолок Армстронг – полностью безопасен для человеческого здоровья. Планируя сделать свой дом действительно неповторимым, следует использовать дизайнерские потолочные панели.
Свойства панелей
Материал
Изготавливаются плиты из минеральных волокон, состоящих из двух основных компонентов:
- минеральной ваты;
- глины.
Кабельную разводку и вентканалы над потолком следует смонтировать заранее
Кроме этого, в качестве добавок различают перлит, гипс, крахмал, латекс, макулатуру, предварительно прошедшую обработку. Особое место здесь принадлежит латексу. Именно его количество влияет на способность Армстронга противостоять влаге (их разрешается монтировать в помещениях с влажностью до 99 %).
Чтобы придать панелям подходящий привлекательный внешний вид, снаружи их покрывают специальным декорирующим веществом.
Минеральное волокно может быть двух видов:
- жестким – становится таким за счет добавления к главным составляющим панелей целлюлозы. Потолки, сделанные из такого материала, становятся более устойчивыми к ударам;
- мягким.
Цвета и фактуры
Стандартным для этого потолка считается белый цвет. Однако в зависимости от особенностей интерьера и пожеланий покупателя, можно приобрести плиты золотого, черного, блестящего, серого и других оттенков.




