Инструкция по сборке кухни. Подготовка к сборке
- Инструкция по сборке кухни. Подготовка к сборке
- Инструкция по монтажу. Общие данные.
- Чертежи кухонных шкафов с размерами для изготовления. Проектирование
- Инструкция по эксплуатации. Руководство пользователя
- Инструкция по сборке кухни Икеа метод. Руководство по сборке кухонь Икеа
- Видео КУХНЯ СВОИМИ РУКАМИ или Как СОБРАТЬ КУХНЮ от А до Я! (за 40 минут)
Инструкция по сборке кухни. Подготовка к сборке
Перед тем, как собрать кухонный гарнитур, нужно подготовить необходимый комплект инструментов:
- Перфоратор, бур диаметром 6 и 8 мм, дрель (переходник на дрель) и соответствующие сверла;
- Шуруповерт (ОБЯЗАТЕЛЬНО!);
- Электролобзик или ножовка по металлу для того, чтобы отпилить столешницу;
- Шестигранный ключ (прилагается к комплекту);
- Инструменты: угольник и уровень, рулетка, молоток, плоскогубцы и ножик-резак.

Совет! Недостающий электроинструмент можно одолжить, а лучше приобрести. Шуруповерт и перфоратор – вещи необходимые в каждом доме.
Потребуются и крепежи разных типов:
- Мебельные гвозди;
- Евровинт;
- Крепежная полоса (рейка) для навешивания;
- Герметик на силиконовой основе;
- Стяжки, скрепляющие секции между собой;
- Саморезы: 15-16 мм для фурнитуры и 70 мм – чтобы повесить кухонные шкафы;
- Уголки, шканты, анкерные болты (прилагаются в гарнитуру);
- Кондуктор для шкантов (желательно).

Если есть инструкция по сборке, то внимательно ее изучите. В руководстве пронумерованы все детали и описан порядок работы. Удостоверьтесь, что комплектация гарнитура полная и рассортируйте все элементы по тумбам. Дальше вы будете собирать свой шкаф как конструктор, ведь большинство современных гарнитуров состоят из модулей.
Как правило, вначале собирают нижние шкафы и устанавливают на них столешницу, потом собирают и вешают верхние модули, рисуют разметку на стене, а далее модули можно уставить и подвесить.
В каком порядке производится установка кухонного гарнитура? Сначала повесить верхние секции или, наоборот, нижние? У того и другого способа есть свои приверженцы. Многие мастера устанавливают сначала верхние шкафы, чтобы нижние тумбы не мешали в процессе монтажа.
Имейте в виду, что верхние шкафчики монтируются без фасадов, так их установка будет проще. Кроме того, так вы сможете проконтролировать зазоры между фасадами непосредственно на стене.
Инструкция по монтажу. Общие данные.
Определение: «Битумная черепица Döcke PIE» является обобщённым названием таких материалов как «Гибкая черепица Döcke PIE» и «Ламинированная черепица Döcke PIE».
Инструкция описывает технологию монтажа битумной черепицы Döcke PIE всех серий и коллекций, подкладочных ковров Döcke PIE, а также ендовых ковров Döcke PIE. С подробным описанием и характеристиками этих материалов можно ознакомиться на сайте www.docke.ru .
Устройство стропильной системы, обрешётки, вентиляции и утепления кровли выполняется на основании конструкторских и теплотехнических расчётов и нормативных документов, действующих для региона строительства.
Внимательно изучите настоящую инструкцию по монтажу и ознакомьтесь с гарантийными обязательствами производителя.
1.1 Назначение материала.
Материал штучный кровельный "Битумная черепица Döcke PIE" предназначен для устройства кровельного покрытия скатных крыш зданий и сооружений с уклоном от 12 до 90 градусов.
1.2 Правила хранения материала.
Материал следует хранить при неукоснительном соблюдении следующих требований:
1.2.1 Хранение материала должно производиться только в заводской упаковке производителя на поддонах. Нарушение оригинальной упаковки производителя категорически запрещается.
1.2.2 Хранение материала должно производиться только в закрытом и сухом помещении на расстоянии не менее 1,5 м от отопительных приборов.
1.2.3 При хранении не допускается установка поддонов друг на друга.
1.2.4 Хранение материала должно производиться при температуре не ниже -40°С и не выше +50°С.
1.2.5 Хранение материала должно производиться при относительной влажности воздуха не более 80%.
1.2.6 При хранении необходимо избегать попадания прямых солнечных лучей.
1.2.7 Штабелирование пачек гибкой черепицы – не более 16 рядов в высоту.
1.2.8 Штабелирование пачек ламинированной черепицы:
- не более 16 рядов в высоту при условии прокладки листов OSB или фанеры через каждые 5 рядов;
- не более 5 рядов без прокладки листов.
1.3 Временное хранение материала (не более 30 дней).
Временное хранение материала должно осуществляться только в неповрежденной упаковке производителя на поддонах, исключающих контакт с землёй. Поддоны должны располагаться в местах, исключающих попадание солнечных лучей.
1.4 Основные правила безопасности при проведении монтажных работ.
1.4.1 Организация работ должна исключать возможность падения человека с высоты (СНиП 12-04-2002).
1.4.2 Не оставляйте упаковку в зоне монтажных работ – на ней можно поскользнуться.
1.4.3 Перемещаться по подкладочным коврам и черепице допустимо только в случае острой необходимости. При этом должны быть полностью исключены какие-либо механические повреждения материала, влияющие как на изменение его внешнего вида, так и физико-механических свойств. Для перемещения по кровле используйте специальные упоры, переходные мостики, подмости и прочие приспособления. Несоблюдение этого правила может привести как к порче внешнего вида кровельного покрытия, так и увеличению риска падения с крыши.
1.5 Правила монтажа битумной черепицы Döcke PIE при температуре окружающего воздуха ниже +10 ˚С.
1.5.1 Необходимо использовать строительный фен:
- для обеспечения быстрого и надёжного сцепления гонтов;
- для повышения эластичности черепицы Döcke PIE в местах перегиба гонтов;
- для подогрева мастики Döcke PIE для битумной черепицы.
1.5.2 Перед монтажом черепица, подкладочные ковры и мастика должны находиться не менее суток при температуре не ниже +20°С.
1.5.3 Вынос материала для монтажа осуществляется по мере необходимости.
1.5.4 В случае осуществления монтажа самоклеящегося подкладочного ковра Döcke PIE при температуре ниже +15 °С необходимо дополнительно фиксировать полотно механически при помощи крепежа тип 1 (таблица №1) (рис. 8 в).
Осуществление кровельных работ при атмосферных осадках недопустимо. В случае выпадения атмосферных осадков во время монтажа необходимо принять меры по укрытию крыши с целью непопадания влаги под уже смонтированную кровлю.
Чертежи кухонных шкафов с размерами для изготовления. Проектирование
Вернёмся же конкретно к моей кухне. Как я уже писал выше, на выбор концепции моего гарнитура повлияла стиральная машинка, главной фишкой которой является вертикальная загрузка белья. То есть, в отличии от большинства стиралок, в моей «рабочей» является верхняя плоскость, а все остальные могут быть скрыты от глаз стороннего наблюдателя. Так и родилась идея угловой кухни, где сторонами угла являются шкафчики, а вершиной – машинка. Такое расположение наиболее рационально и даёт максимальную функциональность.

На снимке выше уже видно новое окно, установленное без подоконника и в уменьшенный проём. Старый проём на мой взгляд был слишком большим для такой комнаты, а от подоконника я отказался, потому что на его место планировал подогнать столешницу. В это же время была сделана разводка электричества и смонтированы блоки розеток для бытовой техники. Позже состоялась укладка плитки на пол и стены, поклейка обоев. К окончательному проектированию гарнитура я подошел, имея следующую картину.

Чертить кухню я взялся в автокаде, потому что всяким PRO100 не обучен, да и не ставил себе такой первоначальной цели. Хотя не скрою, что если освоить эту специализированную программу, то в дальнейшем она по вашим готовым размерам шкафчиков сама произведёт их деталировку и даже предложит оптимальный крепежный элемент. Мой автокадовский чертёж вышел куда более простым, но, вместе с этим, довольно наглядным.

Примечание редакции: для проектирования можно было также воспользоваться онлайн конструктором у нас на сайте . Особенных заний для использования не требуется - берите и рисуйте.
Пробежимся по основным моментам, касающимся получившихся у меня шкафчиков:
- Напольный ряд я решил поставить на декоративные алюминиевые ножки, с возможностью регулирования их по высоте. На мой взгляд, эстетически это выглядит лучше, чем глухой цоколь, да и к тому же остаётся (хоть и ограниченный) доступ под шкафчики (для швабры или тряпки, для визуального осмотра на предмет течи из водопровода или канализации). Наличие декоративных ножек обязательно учитывается при дальнейшей деталировке шкафчиков (см. деталировка).
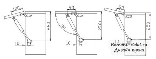
- Фасады шкафов 1 и 5,6 (на самом деле это один шкаф, как и 2,3, просто в первоначальном виде думал, что это будет два шкафчика, а нумерацию уже оставил как есть, чтобы не менять) будут открываться вверх при помощи газовых лифтов.

- Фасад шкафа-сушки (2,3) будет открываться вверх при помощи системы авентос HF.

- Дверцы шкафов 4 (над стиралкой) и 8 (под мойкой) будут распашными на обычных дверных петлях с доводчиком.
- В шкаф 9 будет встраиваться духовой шкаф, поэтому он будет полым, предусмотрен лишь небольшой выдвижной ящичек под ним для хранения противеней и решётки-гриль.
- Шкафы 10.1-10.3 - это три одинаковых шкафа с выдвижными ящиками, которые будут стянуты межсекционными болтами. Почему именно выдвижные ящики, а не просто полочки? Дело в том, что содержимое выдвигающегося ящика легко окинуть взглядом. Чтобы добраться до вещей, стоящих в глубине, не приходится проводить археологические раскопки. Полки же зачастую превращаются в «кладбище» посуды и припасов, о которых хозяева просто-напросто забывают.
Инструкция по эксплуатации. Руководство пользователя
Руководство пользователя — документ, назначение которого — предоставить людям помощь в использовании некоторой системы. Документ входит в состав технической документации на систему и, как правило, подготавливается техническим писателем .
Большинство руководств пользователя помимо текстовых описаний содержат изображения. В случае программного обеспечения , в руководство обычно включаются снимки экрана , при описании аппаратуры — простые и понятные рисунки. Используется стиль и язык, доступный предполагаемой аудитории, использование жаргона сокращается до минимума либо подробно объясняется.
Типичное руководство по эксплуатации содержит:
Все главы и пункты, а также рисунки и таблицы, как правило, нумеруются, с тем, чтобы на них можно было сослаться внутри документа или из другого документа. Нумерация также облегчает ссылки на части руководства, например, при общении пользователя со службой поддержки.
Структура и содержание документа Руководство пользователя автоматизированной системы регламентированы подразделом 3.4 документа РД 50-34.698-90 (отменен приказом Росстандарта от 12.02.2019 N 216). Структура и содержание документов Руководство оператора , Руководство программиста , Руководство системного программиста регламентированы ГОСТ 19.505-79, ГОСТ 19.504-79 и ГОСТ 19.503-79 соответственно.
Инструкция по сборке кухни Икеа метод. Руководство по сборке кухонь Икеа
Наиболее популярная во всем мире мебель Икеа завоевала широкую известность благодаря своей стоимости, универсальности и простоте сборки. Каждый супермаркет данной торговой марки имеет в своем штате квалифицированных продавцов консультантов способных помочь с расчетами и расстановкой мебели.
Для того, чтобы купить кухонный гарнитур достаточно иметь размеры помещения, отметить на нем место расположения плиты, раковины и обратиться к консультанту за помощью. Он без проблем сделает необходимые расчеты и предложит дизайн размещения. Остаетсязабрать составляющие модуля и навесные шкафы со склада или заказать доставку.

В большинстве случаев, при покупке корпусной мебели в магазинах Икеа, заказывают услуги сборщиков. Но не редки случаи, когда покупатели берутся самостоятельно собрать модуль и этому способствуют инструкции, вложенные в каждую упаковку. Но недостаточно собрать шкафы, их надо еще соединить в общий гарнитур, этому послужит чертеж сделанный продавцом-консультантом.
Сборка мебели своими руками
Универсальные корпуса поставляются в полностью разобранном виде и не занимают много места в автомобиле, это является преимуществом при транспортировке, но предполагают трудоемкую сборку. Однако этого не стоит бояться, следуяинструкции по сборке кухни Икеа можно легко справиться с поставленной задачей.

Для того чтобы собрать кухонный гарнитур самостоятельно потребуется:
- крестовая отвертка, дрель или шуруповерт с насадкой;
- небольшой молоток;
- уровень;
- перфоратор;
- лобзик или ножовка по металлу;
- несколько небольших емкостей для саморезов и фурнитуры.

Начиная сборку надо хорошо ознакомиться с чертежом и пронумеровать коробки в порядке установки. Это делается для соблюдения последовательности и не загромождения свободного пространства. Если на кухне мало места, то собирать можно в любом месте и заносить уже готовые элементы конструкции.
Сборка мебели заключается в следующих этапах:
- Перед началом проведения работ надо подробно изучить инструкцию, находящуюся в коробке. При помощи отвертки завинчиваются все необходимые винты, А молоточком подбиваются шканты и крепится задняя стенка шкафов. Места креплений четко указаны в руководстве. Только следуя рисунку, прилагаемому к изделию, можно правильно собрать каждый элемент. Дверцы и ящички временно откладываются в стопку для последующей установки. Собранный модуль сразу ставится на место.

- Поэтапно собираем нижние шкафы и ставим согласно чертежу, начиная с угла. Если в промежутке устанавливается плита или другой бытовой прибор, то его сразу монтируем по месту. Это необходимо для того, чтобы впоследствии не пришлось двигать всю линейку.
- После установки нижней части корпусов начинаем выравнивать их по горизонту. Все элементы гарнитура должны находиться в одном уровне, иначе не встанет столешница и фасады. Регулировка осуществляется при помощи ножек и горизонтального уровня. Прилагаемые в комплекте ножки имеют возможность менять высоту до 5 см.
- По окончании регулировки желательно столы закрепить между собой, для получения монолитной конструкции, поверх которой крепится столешница.

- Следующий этап, это установка стеновой панели, при ее наличии. Для того чтобы поставить фартук, надо снять все розетки, находящиеся в области кухни, наметить их место на панели и вырезать соответствующие отверстия. К стене облицовка крепится при помощи саморезов или дюбелей, которые впоследствии закрываются специальными заглушками.По окончании монтажа ставятся розетки.
- После установки нижнего модуля начинается сборка и навешивание верхних шкафов. Процесс аналогичен, только не надо забывать про вытяжку и уровень при установке полок.
- Когда все шкафа и столы кухонного гарнитура встали на место, начинают навешивать фасады и ставить ящики. Основное внимание при креплении дверок надо уделять ровности соприкасаемых створок и совпадению прилежащих углов. Только правильно выставленный фасад будет красиво выглядеть и не захлопываться в самый неподходящий момент.
- Установка мойки является немаловажным фактором. Для этого лучше вызвать специалиста, либо прочитать инструкцию, как это правильно сделать. Для этого нужны элементарные знания сантехники и герметик. Отверстие под нее можно выпилить самостоятельно при помощи лобзика или ножовки по металлу.
- Конечный этап сборки заключается в установке плинтусов, ручек и заглушек.

Сборка кухни Икеа своими руками не покажется сложной, если есть хороший инструмент и большое желание сэкономить деньги, но не время. Наилучшим методом установки является заказ мебели со сборкой. Небольшая переплата освободит от нервотрепки и лишних проблем. Мастера за считанные часы сдадут кухню в эксплуатацию.

